EasyManua.ls Logo

WEG CFW-09 - Page 78

WEG CFW-09
362 pages
Print Icon
To Next Page IconTo Next Page
To Next Page IconTo Next Page
To Previous Page IconTo Previous Page
To Previous Page IconTo Previous Page
Loading...
79
CHAPTER 3 - INSTALLATIONANDCONNECTION
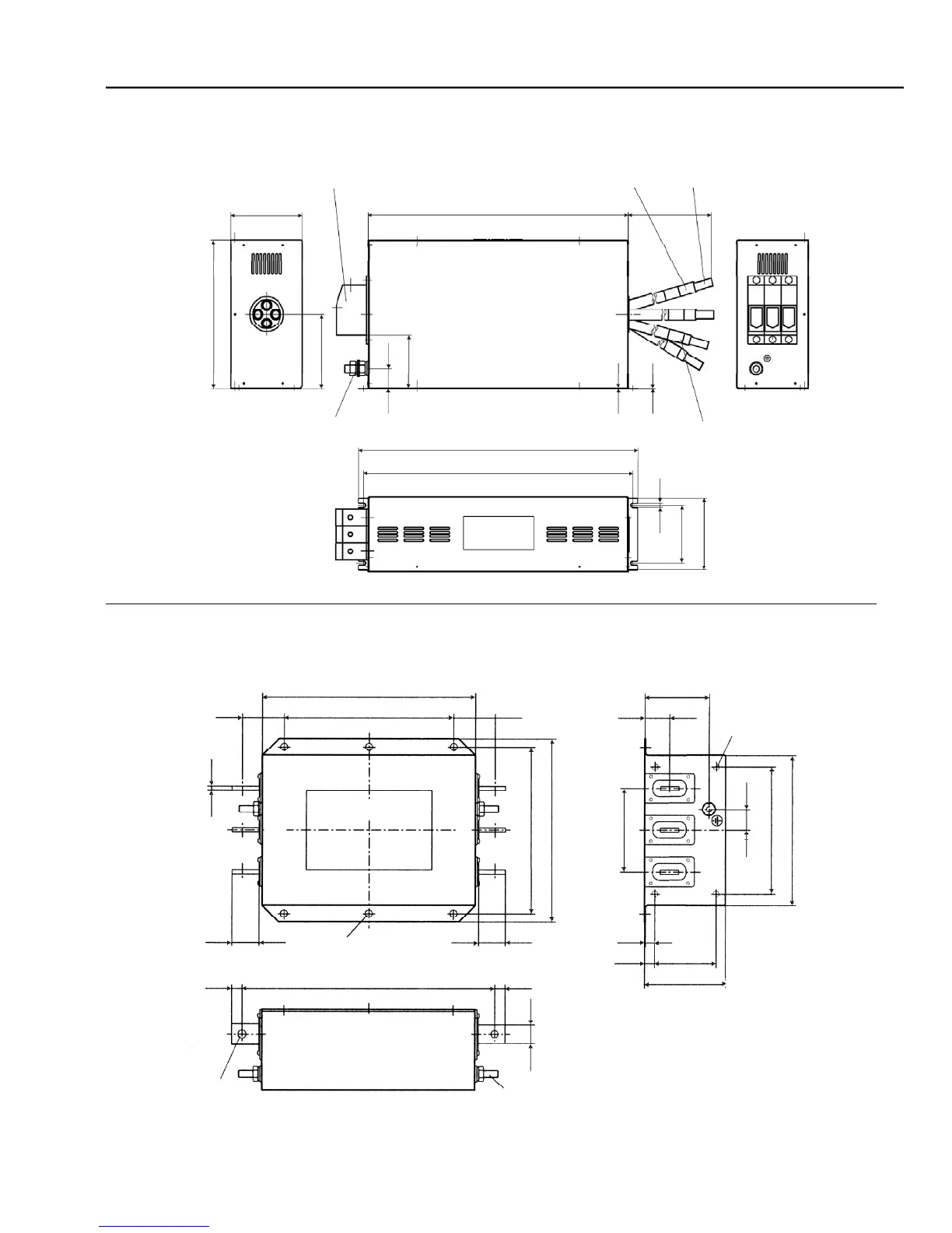
i) EPCOS B84143G220R110 Filter
j) EPCOS B84143B320S20 and B84143B400S20 Filters
Figure 3.20 i) and j)
- EMC filters for CFW-09 inverter series [dimensions in mm]
PE M10 x 35
L1
L2
L3
LINE
LOAD
Marking
6.5
0.5
400
L3'
220
110
30
79
430
415±0.5
106
85±0.3
Litz wire markings
500±10
Litz wire
L2'
L1'
PE
110
Terminal blocks 95 mm
2
Wire end ferrule
PE M10 x 30
L3
LINE
Marking
25
120
60
220
260
360±2
16
85±0.5
4 x M6 mm deep
36
300
60
240±1
235±1
L2
L1
LOAD
L2
L1
12
15
15
42±2
11
42±2
2
116
30
180±0.5
210
91

Table of Contents

Other manuals for WEG CFW-09

Related product manuals