EasyManua.ls Logo

WinGD RT-flex50DF - Page 250

Default Icon
586 pages
Print Icon
To Next Page IconTo Next Page
To Next Page IconTo Next Page
To Previous Page IconTo Previous Page
To Previous Page IconTo Previous Page
Loading...
Maintenance31401/A1
Winterthur Gas & Diesel Ltd.
6/ 6
4. Completion
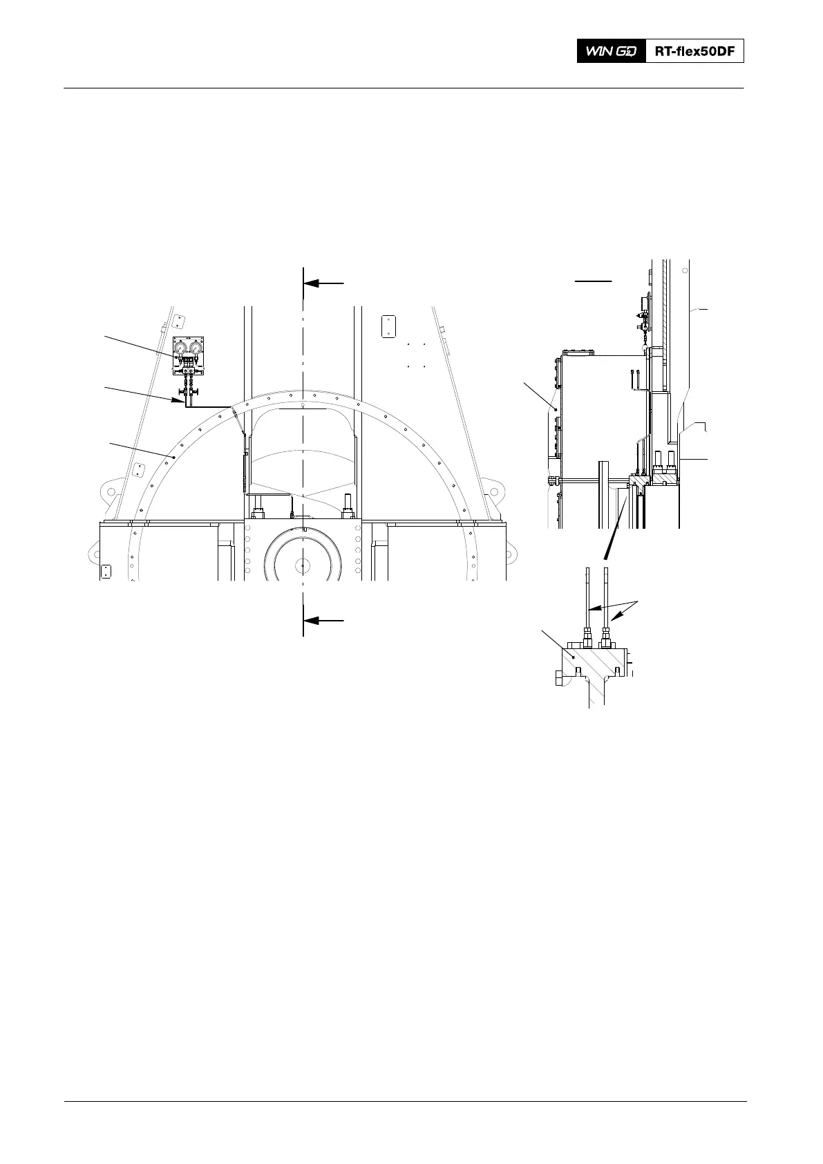
1) Attach the two pipes (2, Fig. 6) to the top cylinder half (4).
2) Attach the top housing (1).
3) Connect the two pipes (3) to the screw-in unions (2).
I
I
I - I
1
4
5
6
WCH03505
2
3
Fig. 6
Axial Detuner: Disassemble and Assemble
2016

Table of Contents