EasyManua.ls Logo

WinGD RT-flex50DF - Page 277

Default Icon
586 pages
Print Icon
To Next Page IconTo Next Page
To Next Page IconTo Next Page
To Previous Page IconTo Previous Page
To Previous Page IconTo Previous Page
Loading...
Maintenance
33033/A2
Winterthur Gas & Diesel Ltd.
7/ 10
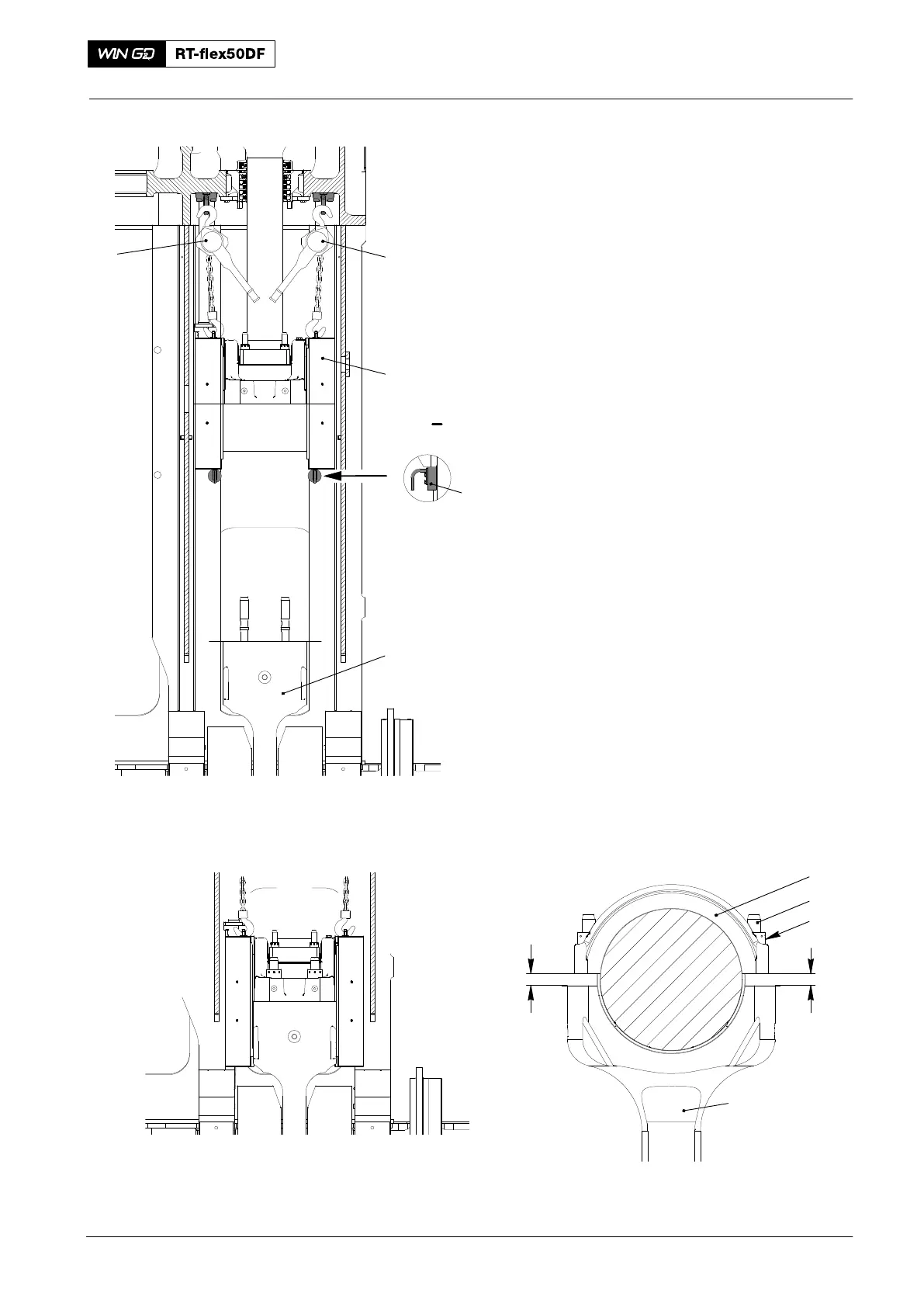
18) Operate the manual ratchets (H3 and
H4, Fig. 8) to lift the guide shoes a
small distance.
19) Remove the four retaining pins
(94323).
Note: During step 20), make sure that the
elastic studs are aligned with the
holes in the crosshead pin.
20) Operate the manual ratchets (H3, H4)
to lower the guide shoes on to the
elastic studs.
21) Remove the items that follow:
D Manual ratchets (H3, H4)
D Retaining pins (94323)
D Stop plate (94370H)
D Eye bolts
D Two lifting rings (94332).
22) Put the round nuts (3, Fig. 9) on the
elastic studs (2).
23) Tighten the round nuts (3) equally with
a round bar.
24) Measure the distance (X1, X2) between
the edges of the bearing shells (1) and
the connecting rod (4).
25) Refer to 03301, Group 3303 to get the
clearance values (X1, X2) for new
bearing shells.
26) Install the four round nuts (3) to the
connecting rod (4), refer to 94034.
2
4
3
1
013.629/05
Fig. 9
X1 X2
2016
Top End Bearing Removal, Inspection and Installation
2
H4
H3
I
I
013.627/05
9432
3
Fig.8
1

Table of Contents