EasyManua.ls Logo

Honeywell AUTOMATIC CONTROL - HTW Coils; HTW Space Heating Units; Storage Converters

Honeywell AUTOMATIC CONTROL
518 pages
Print Icon
To Next Page IconTo Next Page
To Next Page IconTo Next Page
To Previous Page IconTo Previous Page
To Previous Page IconTo Previous Page
Loading...
ENGINEERING MANUAL OF AUTOMATIC CONTROL
CHILLER, BOILER, AND DISTRIBUTION SYSTEM CONTROL APPLICATIONS
380
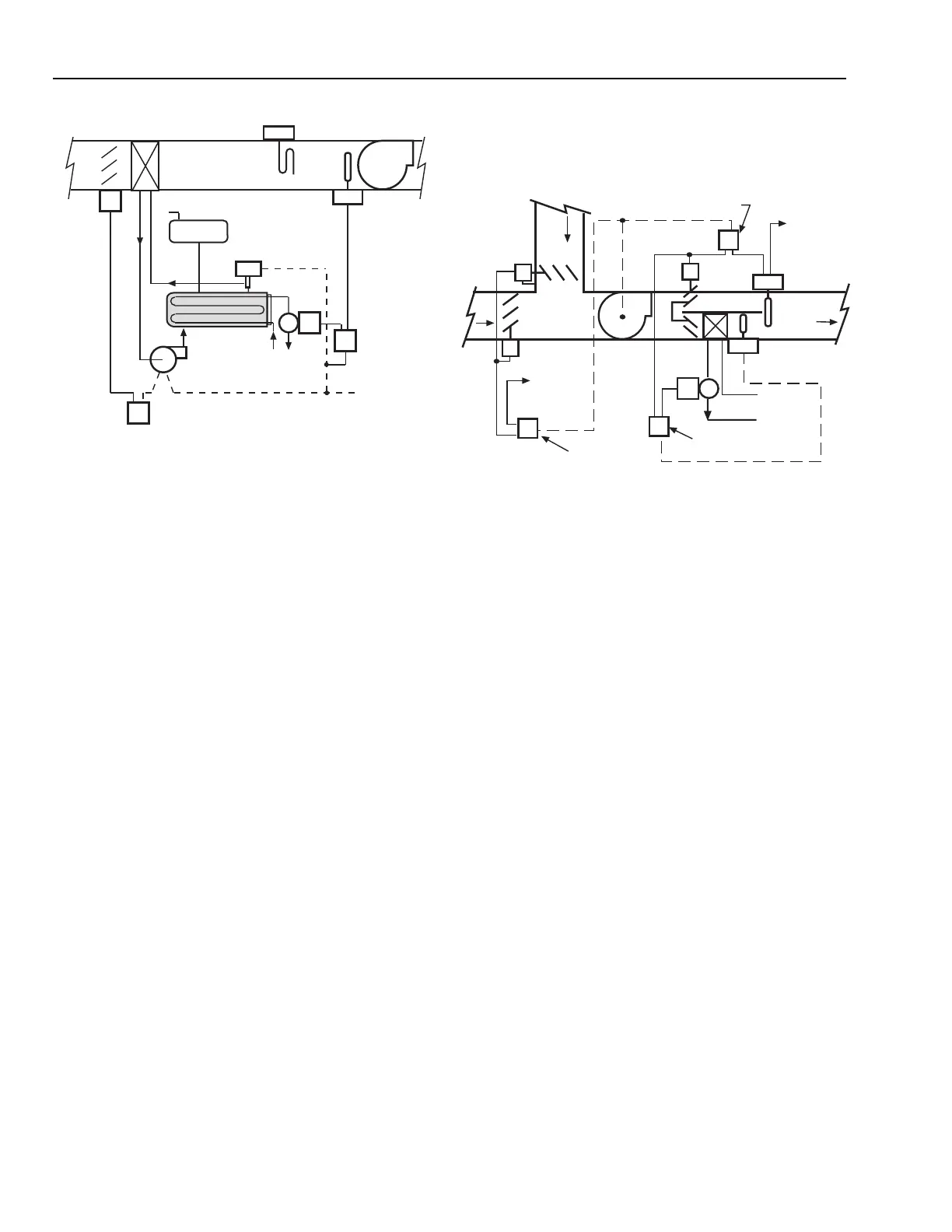
Fig. 120. Instantaneous Converter Control for HTW
to Glycol Solution for Outdoor Air Preheat.
Where coils are exposed to freezing temperatures, as in a
100 percent outdoor air supply unit, the cost of installing a
foolproof control system plus necessary duct work and dampers
make the use of a water supplied coil questionable. Flow to the
coil should be constant with variable temperature. Better
protection against freezing is obtained by use of a heat transfer
fluid such as a glycol solution.
Glycol solutions used with HTW heating must be closely
monitored. Solutions of ethylene or propylene glycol assume
the corrosivity of the water from which they are prepared and
are oxidized by air into acidic products. The deterioration rate
of inhibitors and stabilizers added to commercial glycol is
influenced by temperature, amount of air in the solution, and,
to some extent, the metals in the piping system. Heat exchanger
surfaces should be kept below 285F as temperatures above 300F
accelerate deterioration of inhibitors.
If HTW flow is stopped while the air handling unit continues
to operate with below freezing entering air temperature, heat
transfer solution returning to the converter could cause the
converter to freeze. A low-limit duct temperature controller is
recommended to stop the fan if a low air temperature leaving
the coil is sensed.
HTW COILS
Figure 121 shows an acceptable method of mixed air control
when there is a possibility of freezing air passing through the
heating coil. Face and bypass dampers control the heat output
of the coil during normal operation. When the outdoor
temperature rises so that no heat is needed from the coil, valve
V1 closes preventing overheating from the down stream side
of the coil. The low-temperature limit controller senses the air
temperature leaving the coil and opens the valve on sensing a
freezing temperature. Use of a glycol solution as shown in
Figure 120 is recommended.
Fig. 121. HTW for Mixed Air Reheat.
HTW SPACE HEATING UNITS
Unit heaters, convectors, radiation, and radiant panels can
be supplied directly with HTW. This allows use of smaller units
and smaller piping and eliminates intermediate heat exchangers.
Most of the additional control cost is in the valves suitable for
HTW as the small unitary control valves normally used on low
and medium temperature heating systems are not able to stand
the pressures and temperatures of HTW. Actuator design, body
ratings, disc materials, packing gland design, and lack of low
flow ports are all likely limitations for this type of valve. Flanged
connections are required as union connections do not seal well
enough for HTW applications.
These units are most often used in storage areas, shops,
hangers, or other areas where people do not work in close
proximity to the units. Where people do work near HTW
supplied unitary equipment, some type of limiting control is
required to reduce surface and/or discharge temperatures.
STORAGE CONVERTERS
A storage converter is most often used for heating domestic
water (Fig. 122). It can also be used for building heating.
Separate converters are required for domestic water and building
heating (Fig. 123). Heating system water is treated and
recirculated while domestic water is used and replenished.
TO
MIXED AIR
CONTROLS
RELAY CLOSES FACE
DAMPER AND VALVE
WHEN FAN STOPS
OPTIONAL RESET
LINE FROM
OUTDOOR
CONTROLLER
DISCHARGE
AIR TEMP
CONTROLLER
RELAY OPENS VALVE ON
LOW TEMPERATURE
RELAY CLOSES
OA DAMPER
WHEN FAN STOPS
DAMPER
ACTUATOR
HTWS
LOW-TEMP
LIMIT
HTWR
VALVE
C2584
N.O.
N.C.
RA
N.O.
N.C.OA
DAMPER
ACTUATOR
DISCHARGE
AIR
DAMPER
ACTUATOR
C2583
INSTANTANEOUS
CONVERTER
PUMP
OA
DAMPER
ACTUATOR
OA
N.C.
PREHEAT OR
TEMPERING
COIL
LOW TEMP CONTROLLER
TO SHUT DOWN FAN
FAN
TEMPERATURE
CONTROLLER
TEMPERATURE
CONTROLLER
HIGH LIMIT
FOR CONVERTER
(CLOSES VALVE ON
TEMP. RISE)
EXPANSION
TANK
HTWS HTWR
VALVE
RELAY-
CLOSES
VALVE WHEN
FAN STOPS
POWER
FROM
FAN
CIRCUIT
RELAY-CLOSES OA DAMPER
ON FAN SHUTDOWN

Table of Contents

Related product manuals