EasyManua.ls Logo

IMO iSmart V4 - Power; Size

IMO iSmart V4
274 pages
Print Icon
To Next Page IconTo Next Page
To Next Page IconTo Next Page
To Previous Page IconTo Previous Page
To Previous Page IconTo Previous Page
Loading...
Chapter 9 Expansion Module 216
Power
The input voltage, current and power consumption for each expansion module is listed as below table:
Module Voltage Current Power
SMT-4AI 24 Vdc 70 mA 1.68w
SMT-2AO
24 Vdc
85 mA
2.04w
SMT-4PT
24 Vdc
55 mA
1.32w
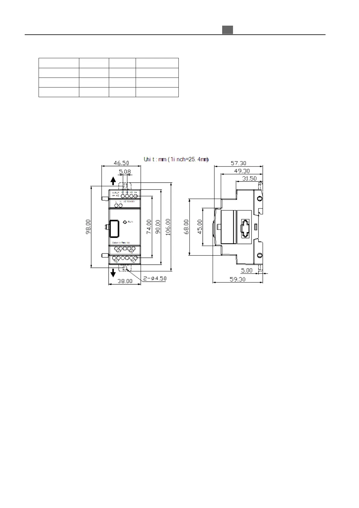
Size
All the expansion modules’ size is the same as shown below.

Table of Contents