EasyManua.ls Logo

Lenovo ThinkServer sd350 - Removing the Node SATA Cable

Lenovo ThinkServer sd350
206 pages
Print Icon
To Next Page IconTo Next Page
To Next Page IconTo Next Page
To Previous Page IconTo Previous Page
To Previous Page IconTo Previous Page
Loading...
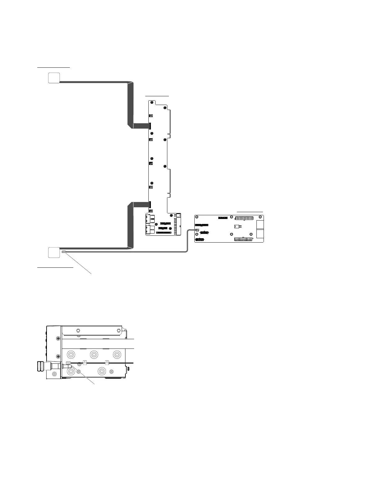
ThefollowingillustrationdisplaysthecablinginformationonthefrontI/Oandthefanboard:
SMB board
Fan board
Front I/O (left)
Front I/O (right)
Thermal sensor
Figure96.InternalcableroutingandconnectorsonthefrontI/Oandthefanboard
Thefollowingillustrationdisplaysthelocationofthethermalsensor.
Thermal sensor
Figure97.Thelocationofthethermalsensor
RemovingthenodeSATAcable
UsethisinformationtoremovethenodeSATAcablefromtheserver.
Readthesafetyinformationin“Safety”onpagevand“Installationguidelines”onpage75.
148LenovoThinkServersd350ServerType5493,LenovoThinkServern400EnclosureType5495InstallationandServiceGuide

Table of Contents

Other manuals for Lenovo ThinkServer sd350

Related product manuals