EasyManua.ls Logo

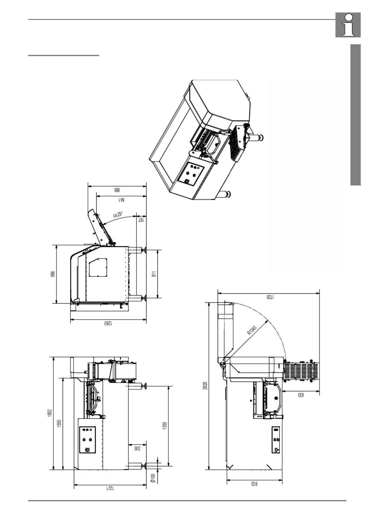
TRIEF TWISTER basic - Dimensions

Default Icon
102 pages
Print Icon
To Next Page IconTo Next Page
To Next Page IconTo Next Page
To Previous Page IconTo Previous Page
To Previous Page IconTo Previous Page
Loading...
Appendix
Dimensions
11/2020 243343V03_EN 87
10.4 Dimensions

Table of Contents