EasyManua.ls Logo

WinGD RT-flex50DF - Page 247

Default Icon
586 pages
Print Icon
To Next Page IconTo Next Page
To Next Page IconTo Next Page
To Previous Page IconTo Previous Page
To Previous Page IconTo Previous Page
Loading...
Maintenance
31401/A1
Winterthur Gas & Diesel Ltd.
3/ 6
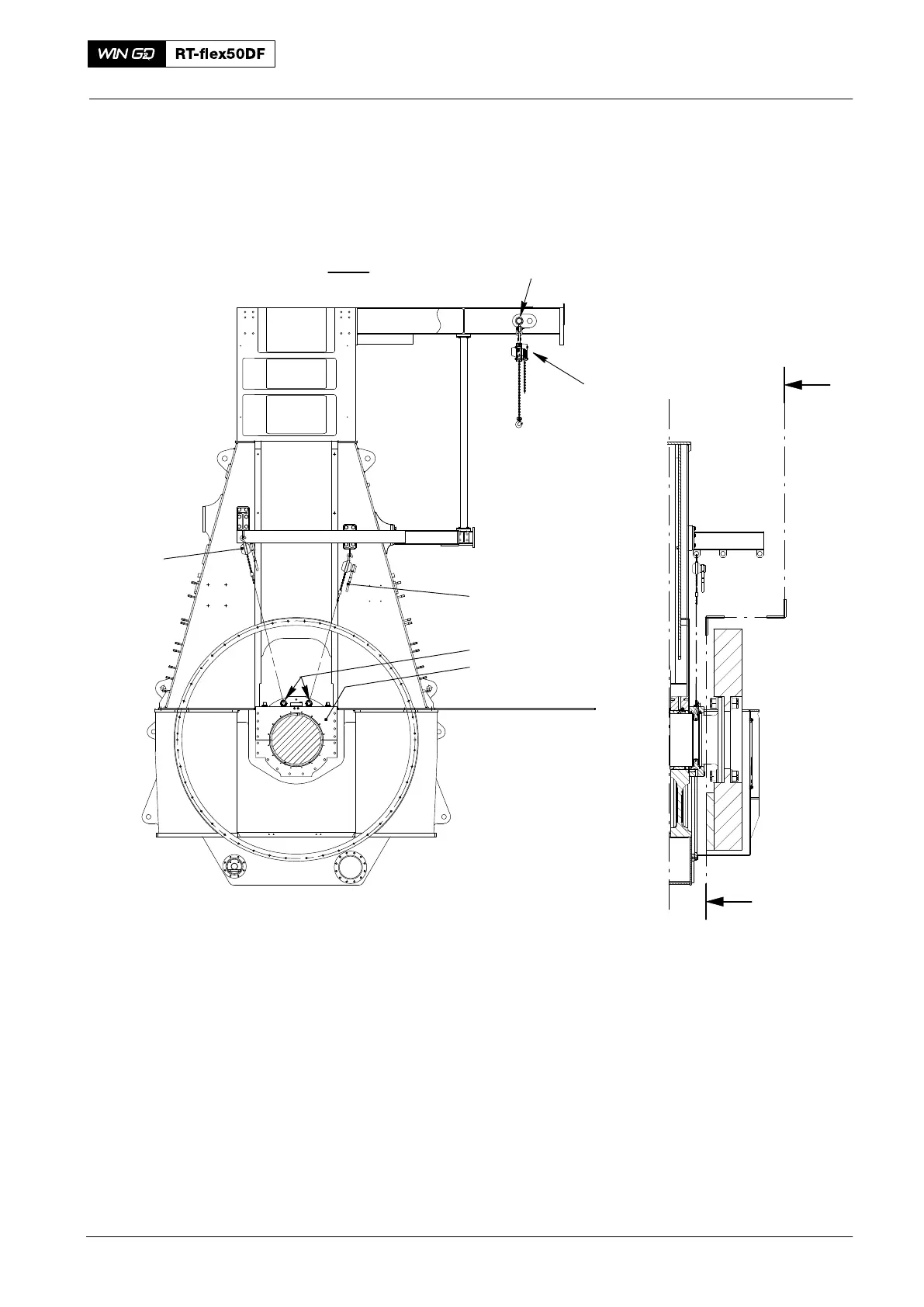
3) Attach the lifting tool (94335, Fig. 3) between the double-I girders.
4) Attach the manual ratchet (94016002) to the lifting tool (94335).
5) Attach the eye bolts (94040M20) to the top cylinder half (1).
6) Attach the manual ratchets (94016001) to the eye bolts (94040M20) as shown.
I
I - I
94016001
94016001
94040M20
1
016.608/08a
94335
Fig. 3
94016002
I
Axial Detuner: Disassemble and Assemble
2016

Table of Contents