EasyManua.ls Logo

WinGD RT-flex50DF - Page 465

Default Icon
586 pages
Print Icon
To Next Page IconTo Next Page
To Next Page IconTo Next Page
To Previous Page IconTo Previous Page
To Previous Page IconTo Previous Page
Loading...
Maintenance
67081/A1
Winterthur Gas & Diesel Ltd.
5/ 10
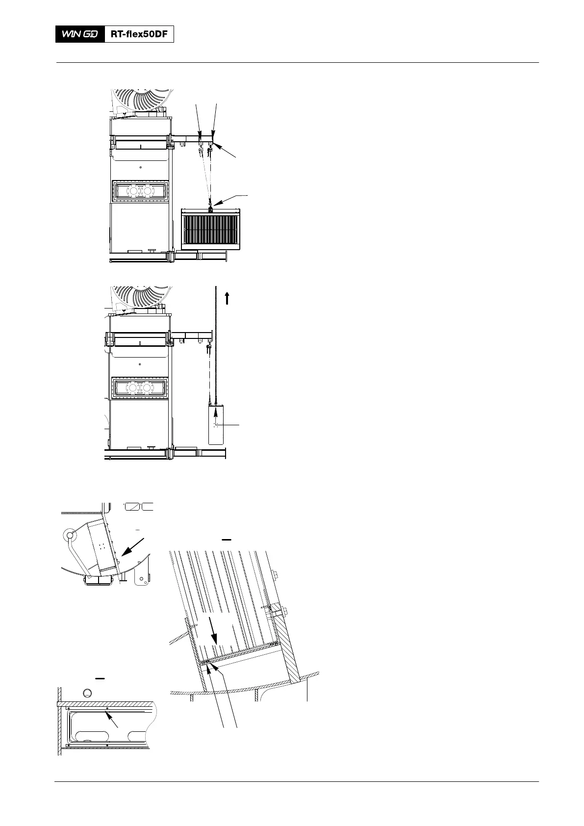
17) Operate the manual ratchet (H1, Fig. 6)
to fully remove the water separator. At
the same time, operate the manual
ratchet (H2) to release the tension.
18) Turn water separator 90_.
19) Attach the engine room crane to the
middle eyelet of the shackle (S1).
20) Operate the engine room crane to hold
the weight of the water separator.
21) Remove the manual ratchets (H1, H2).
22) Operate the engine room crane to
move the water separator to an
applicable area.
23) Remove and discard the rubber cords
(3 and 5, Fig. 2).
3. Installation
1) Make sure that the seating surfaces on
the water separator and the frame are
clean and in good condition.
2) Make sure that the guide bars (1,
Fig. 7) and the areas where the rubber
cords go are clean and in good
condition.
3) Put a new rubber cord (2) around the
rod (3). Bond together the ends of the
rubber cord.
4) Lubricate the two guide bars (1) and
the rubber cord (2).
2016
Water Separator: Removal and Installation
H2
H1
1
94667
S1
Engine Room
Crane
Middle
Eyelet
94667
Fig. 6
Fig. 7
WCH00709
I
I
1
II
II
3
2

Table of Contents