EasyManua.ls Logo

wsm B2420 - 2. STARTING SYSTEM

wsm B2420
333 pages
Print Icon
To Next Page IconTo Next Page
To Next Page IconTo Next Page
To Previous Page IconTo Previous Page
To Previous Page IconTo Previous Page
Loading...
ELECTRICAL SYSTEM
B2420, WSM
9-M3
2. STARTING SYSTEM
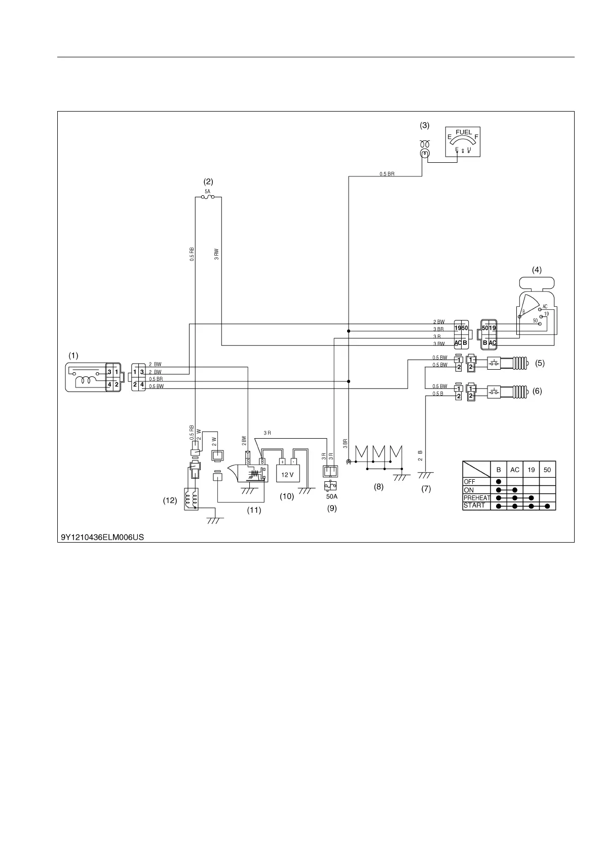
[1] WITHOUT OPC MODEL (SERIAL NUMBER BELOW 33597)
When the main switch (4) is turned to the PREHEAT position, the terminal B is connected to the terminals 19 and
AC. The glow plugs become red-hot, and at the same time, the glow plug indicator also lights on.
When the main switch is then turned to the START position with the safety switches (5), (6) on, the terminal B is
connected to the terminal 50 and AC. Consequently, battery current flows to the starter motor and start the engine.
The main switch automatically returns to the ON position, the terminal B is connected only to the terminal AC,
thereby causing the starting circuit to be opened, stopping the starter motor.
When the main switch turned from the ON position to the OFF position, the key stop solenoid moves the fuel
injection pump control rack to the "No Fuel Injection" position and stop the engine.
9Y1210436ELM0002US0
(1) Starter Relay
(2) Fuse
(3) Glow Plug Indicator
(4) Main Switch
(5) Safety Switch
(Rear PTO Switch)
(6) Safety Switch
(Main Gear Shift Switch)
(7) Frame Earth
(8) Glow Plug
(9) Slow Blow Fuse
(10) Battery
(11) Starter Motor
(12) Key Stop Solenoid
KiSC issued 06, 2012 A

Table of Contents