EasyManua.ls Logo

Denso RC7M - Page 80

Denso RC7M
174 pages
Print Icon
To Next Page IconTo Next Page
To Next Page IconTo Next Page
To Previous Page IconTo Previous Page
To Previous Page IconTo Previous Page
Loading...
60
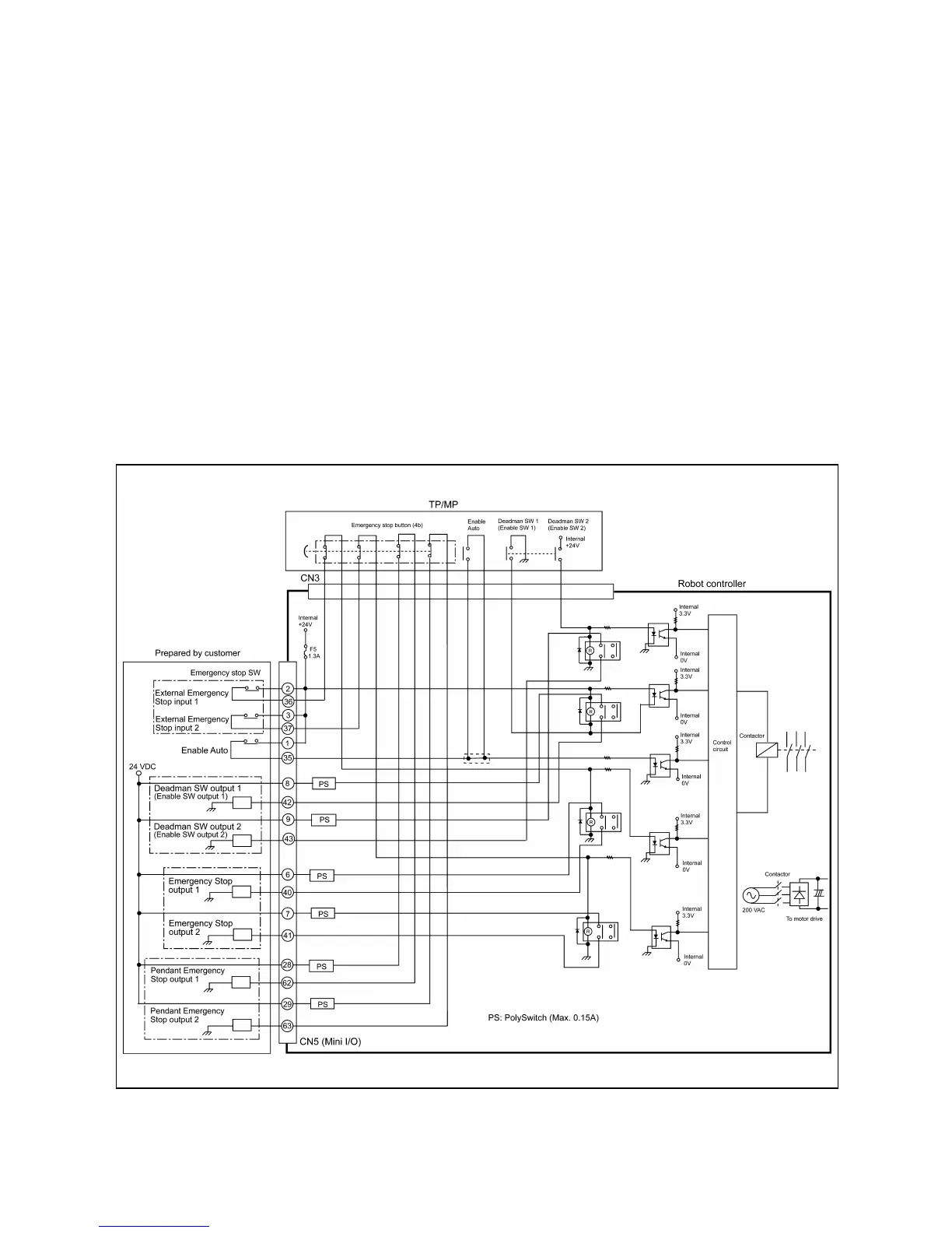
4.2.4.2 Emergency Stop Circuit (Standard type of controller)
The following figure shows the example of configuration and connection of emergency
stop circuit on the standard type of the controller. In the RC7M controller, the
emergency stop circuit consists of dual safety circuits.
The emergency stop button on the teach pendant can be used also as an emergency
stop switch of the equipment.
Emergency Stop and Pendant Emergency Stop output signals
(1) Emergency Stop output signal
The internal relay receives the External Emergency Stop input signal and the
emergency stop input from the teach pendant to output this signal. When the power
is turned OFF, the controller is in the emergency stop state.
(2) Pendant Emergency Stop output signal (Dry output)
The two contacts on the emergency stop button (4b) on the teach pendant are
connected. This signal will be issued independent of the ON/OFF state of the
controller power.
Emergency Stop Circuit in the RC7M Controller (Standard type of controller)

Table of Contents

Related product manuals