EasyManua.ls Logo

Denso RC7M - Configuration of Safety Circuit (Global Type of Controller)

Denso RC7M
174 pages
Print Icon
To Next Page IconTo Next Page
To Next Page IconTo Next Page
To Previous Page IconTo Previous Page
To Previous Page IconTo Previous Page
Loading...
61
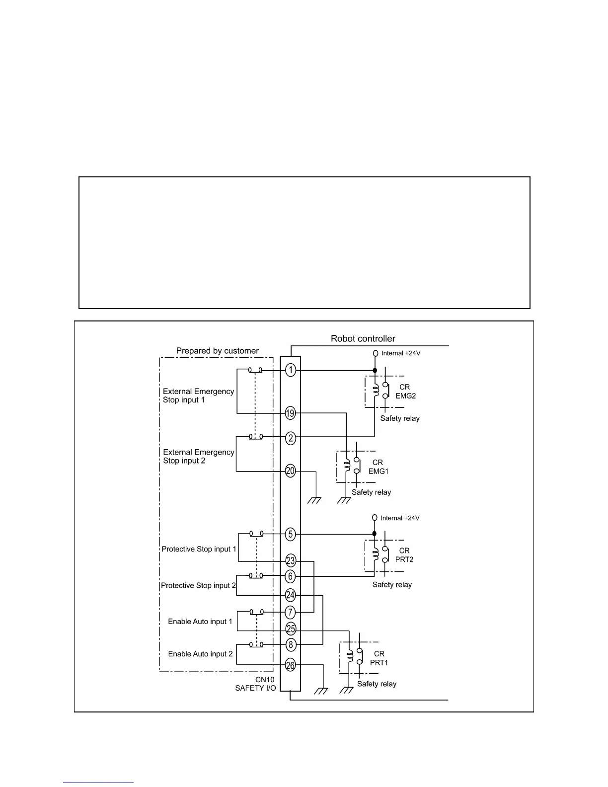
4.2.5 Configuration of Safety Circuit (Global type of controller)
4.2.5.1 Input Circuit to the Safety Circuit
Input signals to the safety circuit are important for safety. Be sure to configure their
circuits with contacts as shown below, observing the notes given below.
Note: For the overall configuration sample of a safety circuitry, refer to Section 4.2.5.2
"Safety Circuit."
Precautions on Connecting the Safety I/O (CN10)
(1) Two External Emergency Stop input signals must be controlled with separate contacts. Two circuits
connected in parallel using a single contact or an always-shorted circuit will be interpreted as an
external circuit failure so that the emergency stop state cannot be reset.
(2) Two Protective Stop input signals and two Enable Auto input signals each must be controlled with
separate contacts. Two circuits connected in parallel using a single contact or an always-shorted
circuit will be interpreted as an external circuit failure so that the circuitry will not operate.
(3) The Enable Auto and Protective Stop input signals are connected in series in the controller, so two
types of inputs are available as an automatic operation permission signal.
(4) Switching the External Emergency Stop, Protective Stop, and Enable Auto input signals from open
to close does not require temporal conditions, but requires any action to switch.
Input Circuits to the Safety Circuits (Global type of controller)

Table of Contents

Related product manuals