EasyManua.ls Logo

EST EST3X - Page 137

EST EST3X
298 pages
Print Icon
To Next Page IconTo Next Page
To Next Page IconTo Next Page
To Previous Page IconTo Previous Page
To Previous Page IconTo Previous Page
Loading...
Chapter 5: Installation
EST3X Technical Reference Manual 127
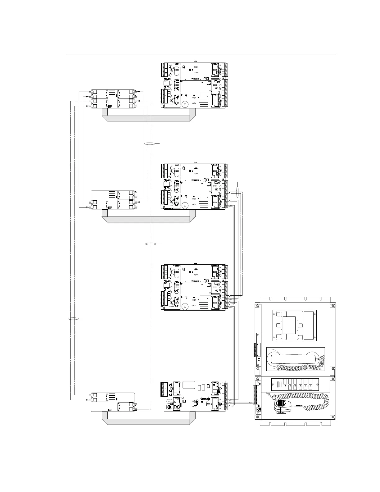
Figure 33: Combination EST3X/EST3 fiber optic network cabling
(1)
(1)
TEST
N
ORM
AL
J2
A AUDIO B AUDIO
A DATAB DATA
RX TX
RX TX
3-FIBMB2
NETWORK AUDIO AUDIO AUDIO AUDIO
OUT IN
+ -
B B
A IN A OUT B IN B OUT
+ - + - + - + -
A B
RS-485
+- +-
RS-485R
X
1
A A
+ -
T
X
1
T
S
1
R
O
M
1
C
BUS BUS
B
+ -
LOOP1
M
K
S
W
R
P
1
B
H
S
A
+ -
LOOP1
A B
+ -
LOOP1
B 24+
AUX
C
B
+-
LOOP22
B
H
S
A
+-
LOOP2
AB
+-
LOOP2
B
24+
AUX
C
C C C
TROUBLE ALARM
SUP
N
C
N
O
N
O
N
A
N
C
N
C
N
O
M
K
S
W
R
P
NETWORK AUDIO AUDIO AUDIO AUDIO
OUT IN
+ -
B B
A IN A OUT B IN B OUT
+ - + - + - + -
A B
RS-485
+- +-
RS-485R
X
1
A A
+ -
T
X
1
T
S
1
R
O
M
1
C
BUS BUS
B
+ -
LOOP1
M
K
S
W
R
P
1
B
H
S
A
+ -
LOOP1
A B
+ -
LOOP1
B 24+
AUX
C
B
+-
LOOP22
B
H
S
A
+-
LOOP2
AB
+-
LOOP2
B
24+
AUX
C
C C C
TROUBLE ALARM
SUP
N
C
N
O
N
O
N
A
N
C
N
C
N
O
M
K
S
W
R
P
NETWORK AUDIO AUDIO AUDIO AUDIO
OUT IN
+ -
B B
A IN A OUT B IN B OUT
+ - + - + - + -
A B
RS-485
+- +-
RS-485R
X
1
A A
+ -
T
X
1
T
S
1
R
O
M
1
C
BUS BUS
B
+ -
LOOP1
M
K
S
W
R
P
1
B
H
S
A
+ -
LOOP1
A B
+ -
LOOP1
B 24+
AUX
C
B
+-
LOOP22
B
H
S
A
+-
LOOP2
AB
+-
LOOP2
B
24+
AUX
C
C C C
TROUBLE ALARM
SUP
N
C
N
O
N
O
N
A
N
C
N
C
N
O
M
K
S
W
R
P
TEST
NORMAL
J2
A AUDIO B AUDIO
A DATAB DATA
RX TX
RX TX RX TX
3X-FIB
TEST
NORMAL
J2
A AUDIO B AUDIO
A DATAB DATA
RX TXRX TX
RX TX RX TX
3X-FIB
SFS1-CPU
w/3X-NET
NETWORK AUDIO AUDIO AUDIO AUDIO
OUT IN
+ -
B B
A IN A OUT B IN B OUT
+ - + - + - + -
R
X
1
A A
+ -
T
X
1
T
S
1
R
O
M
1
C
R
X
2
T
X
2
T
S
2
R
O
M
2
C
C C C
TROUBLE ALARM
SUP
N
C
N
O
N
O
N
A
N
C
N
C
N
O
REMOTE MIC
TELEPHONE
SECONDARYPRIMARY
AUDIO DATA
OUT
PAGE
KEY AUDIO
REMOTE
3-CPU3
SFS1-CPU SFS1-CPU
3-ASU/FT
(1)
(1)

Table of Contents

Other manuals for EST EST3X

Related product manuals