EasyManua.ls Logo

Garmin G3X - 7.6 Outline and Installation Drawings

Garmin G3X
1011 pages
Print Icon
To Next Page IconTo Next Page
To Next Page IconTo Next Page
To Previous Page IconTo Previous Page
To Previous Page IconTo Previous Page
Loading...
190-01115-01 G3X™/G3X Touch™ Avionics Installation Manual
Rev. AV Page 7-4
7.6 Outline and Installation Drawings
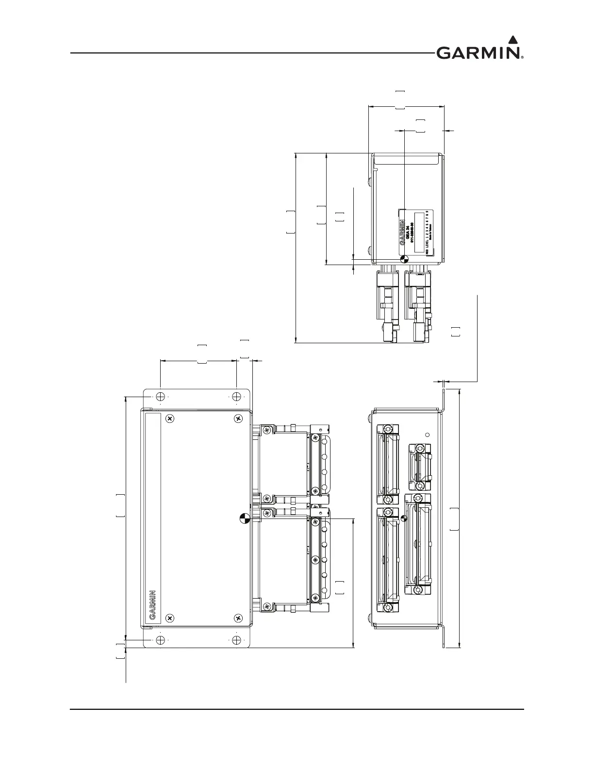
Figure 7-2 GEA 24 Outline Drawing
6.80 172.7
0.04 1
TYPICAL THICKNESS
BENEATH FASTENER HEAD
2X 6.40
162.6
2X 0.42
10.7
2.00 50.8
2X 0.20
5.1
3.4 86
CENTER OF GRAVITY
2.94 74.7
2.00 50.8
4.98 126.6
1.1 27
CENTER OF
GRAVITY
0.2 4
CENTER OF GRAVITY
NOTE:
1. DIMENSION: INCHES[mm]. METRIC VALUES ARE
FOR REFERENCE ONLY.
2. DIMENSIONS ARE NOMINAL AND TOLERANCES
ARE NOT IMPLIED UNLESS SPECIFICALLY STATED

Table of Contents

Other manuals for Garmin G3X

Related product manuals