EasyManua.ls Logo

gefran TPD32-EV-...-4B - Regulation Card

gefran TPD32-EV-...-4B
504 pages
Print Icon
To Next Page IconTo Next Page
To Next Page IconTo Next Page
To Previous Page IconTo Previous Page
To Previous Page IconTo Previous Page
Loading...
—————— Instruction manual ——————
419
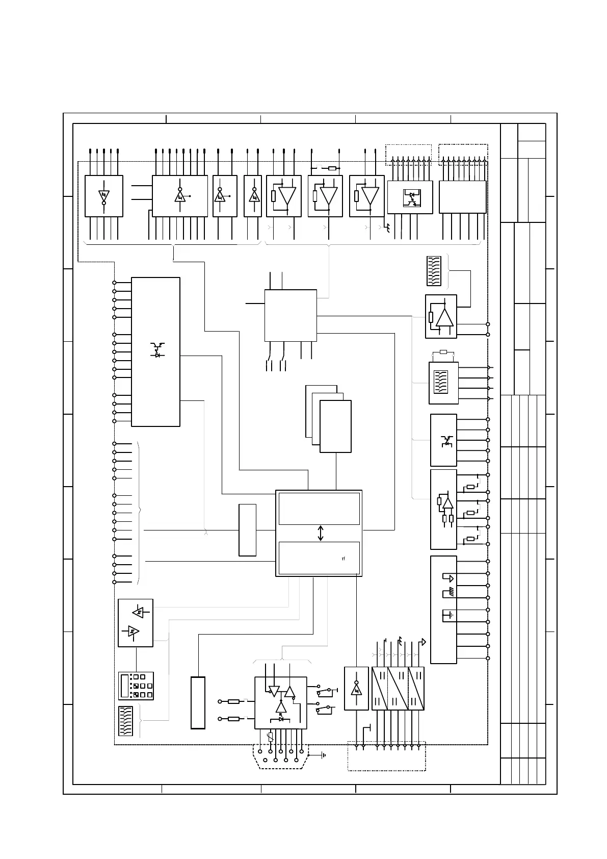
9.3 REGULATION CARD
MOD. DATE MODIFICATION DESCRIPTION Des. / Sch. ApprovedECS Nr.
Mod.
Index
Page Over
Date:
Name:
Des.
Layout ECS Nr.
Sch.
Apprv.
1
2
4
3
5
6
7
8
9
A
BC
D
E
12345678 9
A
B
C
D
E
BRI ROS
01 / 12 / 05 11
ENCODER B
A+
A-
B +
B -
C +
C -
A2
B2
NP_2
CENC 2
RS 485
TXD
RXD
DDR
A+
A-
B -
B +
C -
C +
A1P
A1N
B1P
B1N
NP_1
ENCODER A
+
-
TACHO
XE1
XE2
+24VED
GNDED
S9 S10 S11
123456
ANALOG INPUTS
789
REFERENCES
-10V
0V
+10V
11 1710 20 18 19
+24V
12 13 14 15 16
DIGITAL INPUTS
ENABLE
STR_STP
FST_STP
EXT_FLT
COM_ID
XS
A
B
A
B
S18
S19
+5V
RS 485
+5VS GNDS
+5V
+15V
-15V
+24V
GNDD
GNDA
0V24
XA-1-3-5
XA-2-4-6
XA-9-10
XA-11-12
XA-13-14
XA-16
XA-15
Vmin
XA-7
XA-8
XA
1234 5 678910 11 12 13 14 15 1234 5 678910 11 12 13 14 15
XR-6
XR-8
XR-10
XR-11
XR-32
2B-4B
I=0
OTS
OTM
SYNC
XR-4
XR-5
OK
PTZ
+
-
XR-15
XR-16
XR-17
VA
VB
U
V
W
+
-
V - ARM.
XR-18
XR-19
EMF
+
-
I - ARM.
XR-13
XR-14
Iact
IT1
IT2
IT3
IT4
IT6
MN
MP
IT5
XR-23
XR-29
XR-25
XR-31
XR-21
XR-27
XR-34
XR-33
RST
HS0
HS1
HS2
HS3
HS4
HS5
MN
MP
S7
C
D
ANALOG
FRONT END
VecAna
ANL. OUT. 1
COM ANL. OUT 1
ANL. OUT.2
COM. ANL. 2
COM. DGT.OUT
DGT. OUT. 1
DGT. OUT. 2
DGT. OUT.3
DGT. OUT.4
SUPPLY DGT.OUT
DGT. INP. 1
DGT. INP. 2
DGT. INP. 3
DGT. INP.4
COM DGT. INP
COM DGT. INP
DGT. INP. 8
DGT. INP. 7
DGT. INP. 6
DGT. INP. 5
SUPPLY DGT.OUT
TBO (Optional)
XBB
DGT. OUT.8
DGT. OUT.7
DGT. OUT. 6
DGT. OUT. 5
COM. DGT.OUT
COM. ANL. 4
ANL. OUT.4
COM ANL. OUT 3
ANL. OUT. 3
XE1-5
XE1-1
XE1-6
XE1-4
XE1-3
XE1-8
XE2-5
XE2-6
XE2-8
XE2-1
XE2-3
XE2-4
XE2-2
XE2-7
THYRISTORS
S15-1-2-3-4-5-6-7-8
XY5
XY6
XY12
XY10
XY11
XY8
XY9
XE1-9
XE1-7
+5VEA
GNDEA
FIELD
XR-1
XR-2
ITF1
ITF2
MOD1
MOD2
XFCD-4
XFCD-3
XFCD-1
XFCD-2
+15V
-15V
E PROM
2
DAC
+
_
S12
S13
ANL(1) ANL(2) ANL(3)
A
B
C
A
B
C
S5
S6
NTACHO
A1N
TACHO
AIP
VREF
+5VA
-5VA
+5VD
-5VD
XY17
XY18
XY19
+5VP
GNDP
XY20
XY21
XY22
R - TPD32 (ESE 4155)
BLOCK DIAGRAM R - TPD32
0V24
XT
EXT. / INT.
SUPPLY
1
2
3
4
5
6
7
8
9
MAINS
RELAYS
Nr. ESE 4155
ENT
+
_
CANC
STOP
LCD DISPLAY
START
-
S14-1-2-3-4-5-6-7-8
S4-1-2-3-4-5-6-7-8
R
LB
LA
XY7
DSP
dSMC101
CENC 1
CENC 1
XE1-2
XO
INT. EXP BUS
FOR OPT. CARDS
A/D BUS
CONTROL BUS
CONTROLLOR
C167
SRAM
FLASH

Table of Contents

Related product manuals