EasyManua.ls Logo

HBM QuantumX MX840A - Mx1601 Pin Assignment

HBM QuantumX MX840A
181 pages
Print Icon
To Next Page IconTo Next Page
To Next Page IconTo Next Page
To Previous Page IconTo Previous Page
To Previous Page IconTo Previous Page
Loading...
107Connection
HBMQuantumX
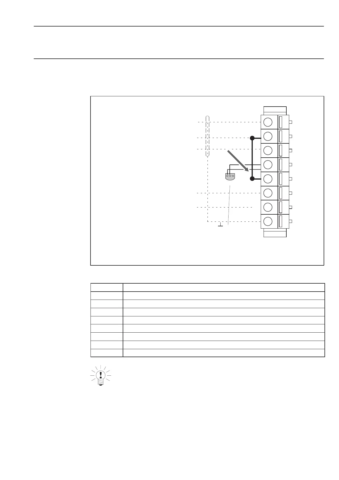
6.9.1 MX1601pin assignment
So that insertion or removal of a transducer connection can be unmistakably identified, Pin 2
and Pin 5 in the connector plug must be bridged! If this bridge is missing, no measurement
values will be recorded at the connection!
1
2
3
1
2
3
4
5
6
7
8
1-Wire-EEPROM
(Maxim DS2433+)
Bottom view
2 Data
3 no function
1
Bridge
Fig.6.13: Pin assignment of the connector plug, view from the connection side
Pin Connection
1 Voltage input 10 V (+), 100 mV (+), IEPE (+)
2 Signal ground, TEDS ()
3 Current input 20 mA (+)
4 TEDS (+)
5 Always connect with Pin 2! (Plug identification)
6 Active sensor supply (+)
7 Active sensor supply ()
8 Housing (shield connection)
NOTE
The transducer excitation voltage can be set in the range of 5 ... 24 V and is only
available at channels 1 ... 8. At channels 9 ... 16, the supply voltage (10 V ... 30 V) is
output less approx. 1 V. A current drain of max. 30 mA is possible; the current limiter
cuts the transducer excitation voltage at a higher current drain.

Table of Contents

Related product manuals