EasyManua.ls Logo

HBM QuantumX MX840A - Pulse Counting (Single−Pole Mode)

HBM QuantumX MX840A
181 pages
Print Icon
To Next Page IconTo Next Page
To Next Page IconTo Next Page
To Previous Page IconTo Previous Page
To Previous Page IconTo Previous Page
Loading...
138 Connection
HBM QuantumX
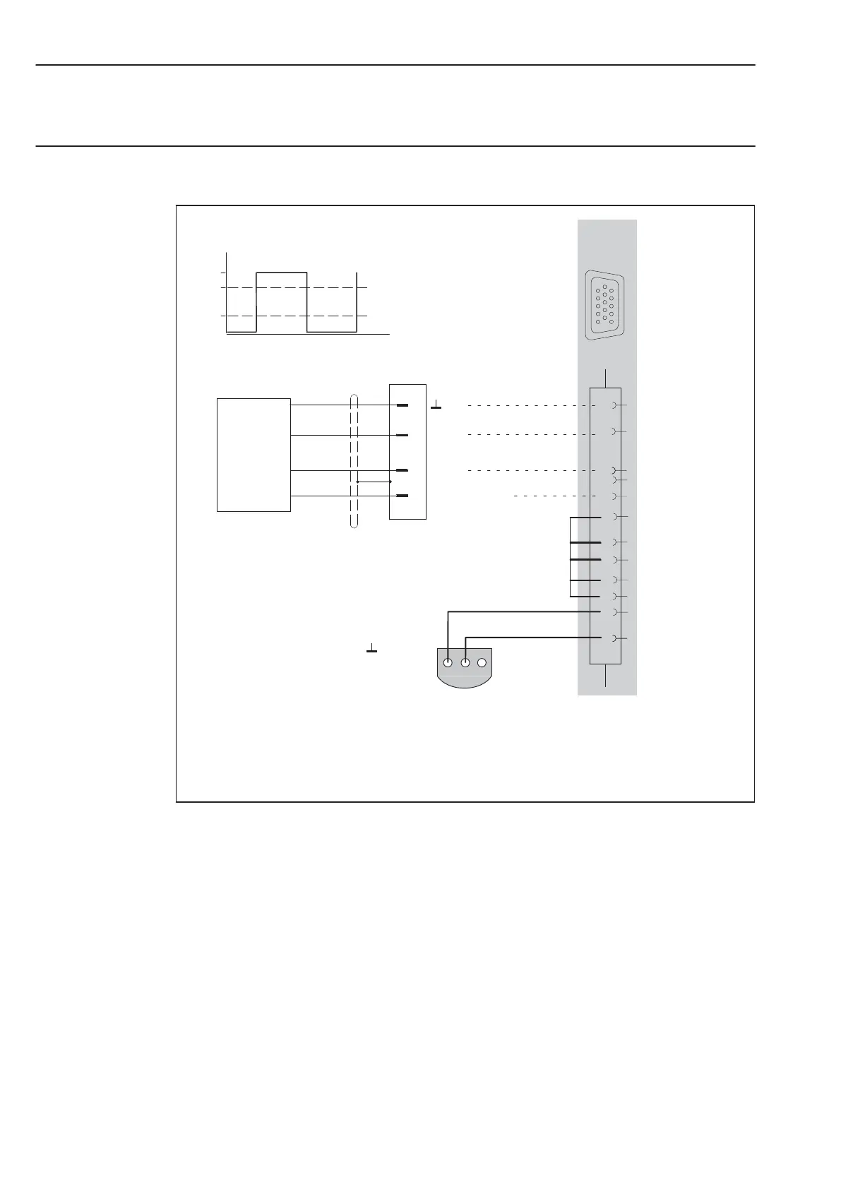
6.11.24 Pulse counting (singlepole mode)
Supported by modules: MX840, MX840A, MX440A, MX460
6
10
8
3
Industrial
pulse
generator
f
2
(+)
Zeroing pulse
9
4
7
2
5
5 V
3.5 V
1.5 V
Thresholds
Thresholds
f
1
Schematic diagram, Singlepole mode
0 V
f
1
(+)
Hsg.
Cable shield
Hsg. = housing
6
1
123
1-wire EEPROM
(optional)
view from below
1
5
6
10
11
15
2 Data
3 No function
1
Adjustable sensor supply: Pin 12: 5 V ... 24 V
Pin 11: 0 V

Table of Contents

Related product manuals