EasyManua.ls Logo

Lenovo ThinkSystem SR635 V3 - Page 290

Lenovo ThinkSystem SR635 V3
356 pages
To Next Page IconTo Next Page
To Next Page IconTo Next Page
To Previous Page IconTo Previous Page
To Previous Page IconTo Previous Page
Loading...
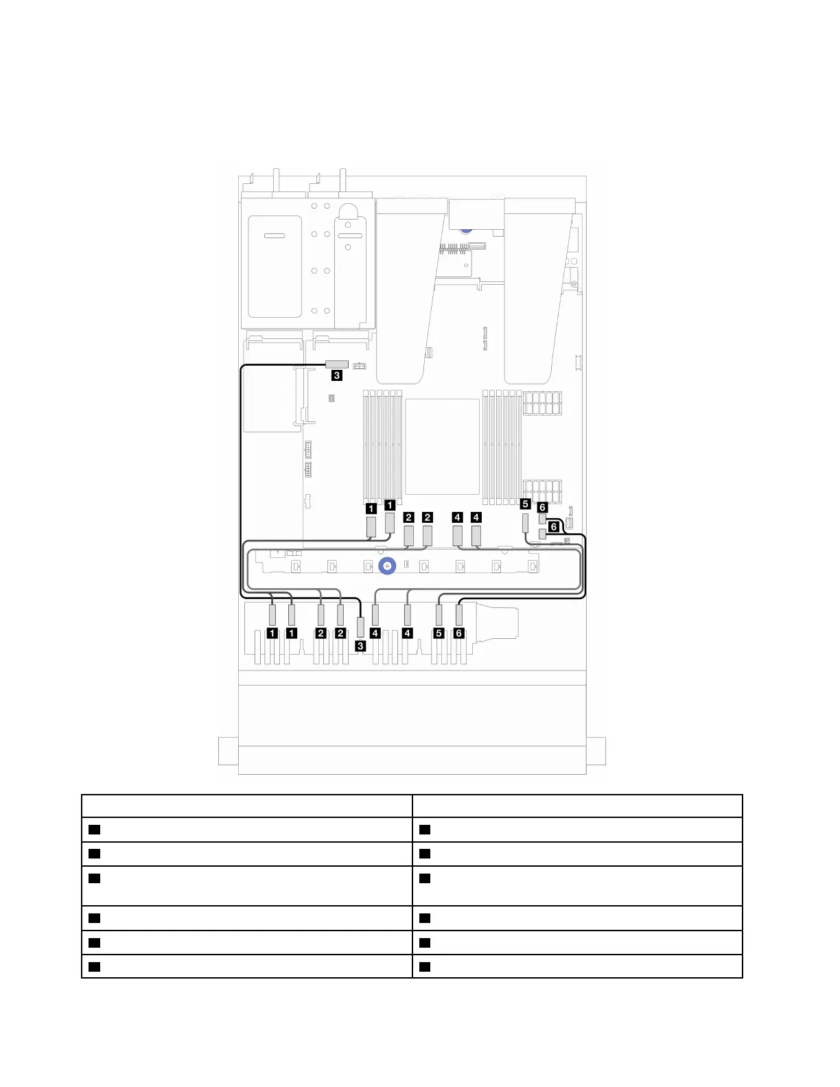
Cable routing for 16-EDSFF drive backplane
The following table shows the cabling routing for the 16-EDSFF drive backplane. For the locations of relevant
connectors on the processor board, see
“System-board-assembly connectors” on page 33 for details.
From To
1 EDSFF 0-1, EDSFF 2-3 1 PCIe connector 1 and 2
2 EDSFF 4-5, EDSFF 6-7 2 PCIe connector 3 and 4
3 EDSFF Power
3 Backplane power connector on the system board
assembly
4 EDSFF 8-9, EDSFF 10-11 4 PCIe connector 5 and 6
5 EDSFF 12-13 5 PCIe connector 7
6 EDSFF 14-15 6 PCIe connector 8 and 9
280 ThinkSystem SR635 V3 User Guide

Table of Contents

Other manuals for Lenovo ThinkSystem SR635 V3

Related product manuals