EasyManua.ls Logo

Lenovo ThinkSystem SR650 V3 7D75 - 7 Mm Drives

Lenovo ThinkSystem SR650 V3 7D75
518 pages
To Next Page IconTo Next Page
To Next Page IconTo Next Page
To Previous Page IconTo Previous Page
To Previous Page IconTo Previous Page
Loading...
1 SAS 1 connector
2 Power connector
1 SAS 0 connector
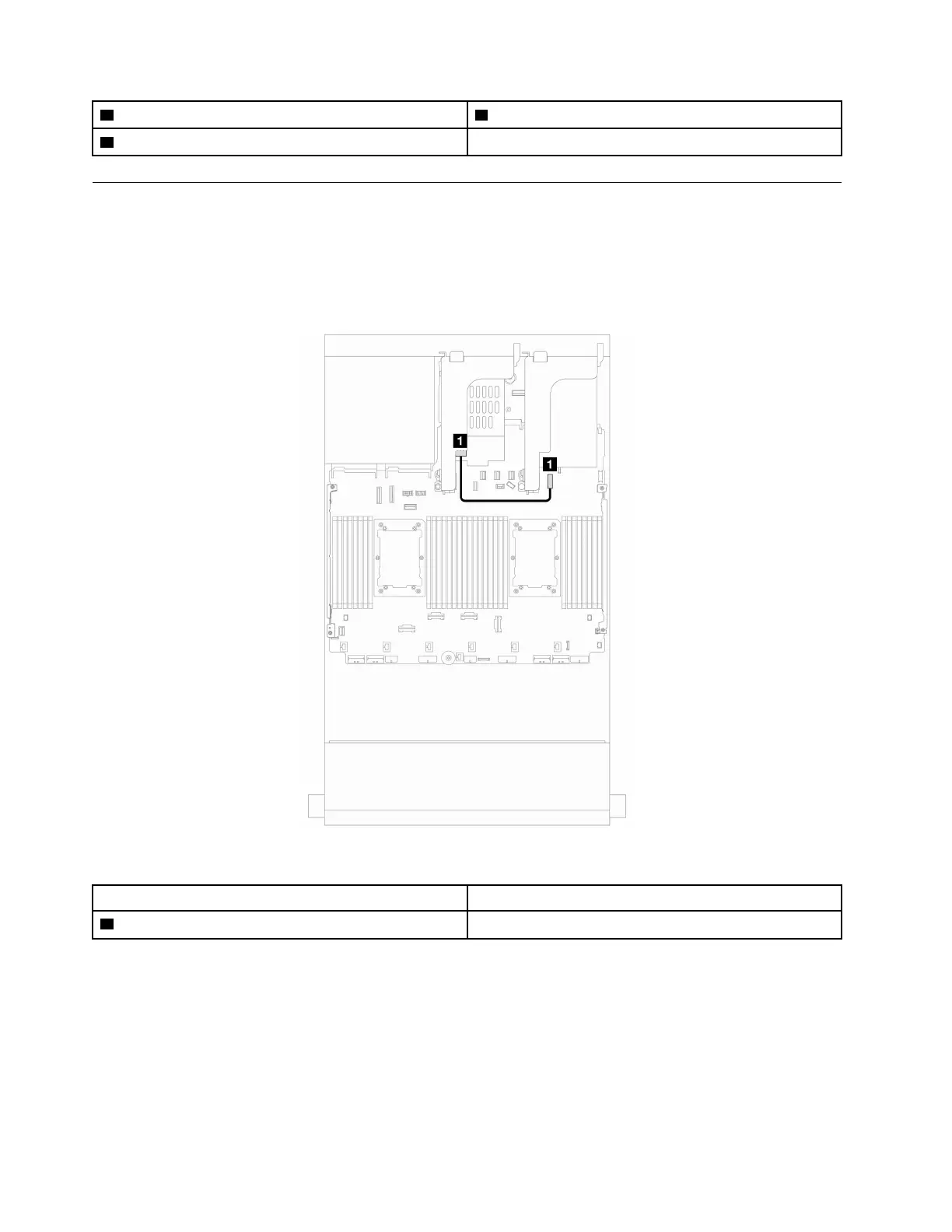
7mm drives
This section provides cable routing information for the 7mm drives.
Note: The following uses the 7mm drives installed on riser 2 as an example for illustration. The cable routing
for 7mm drives installed on riser 1 is similar.
Power cable routing
Figure 247. Power cable routing
From To
1 Power connector on the 7mm backplane 7mm power connector on the system board assembly
Signal cable routing
The 7mm drive backplane supports SATA, NVMe, or RAID cable connection.
276
ThinkSystem SR650 V3 User Guide

Table of Contents

Related product manuals