EasyManua.ls Logo

Lenovo ThinkSystem SR650 V3 7D75 - Page 303

Lenovo ThinkSystem SR650 V3 7D75
518 pages
To Next Page IconTo Next Page
To Next Page IconTo Next Page
To Previous Page IconTo Previous Page
To Previous Page IconTo Previous Page
Loading...
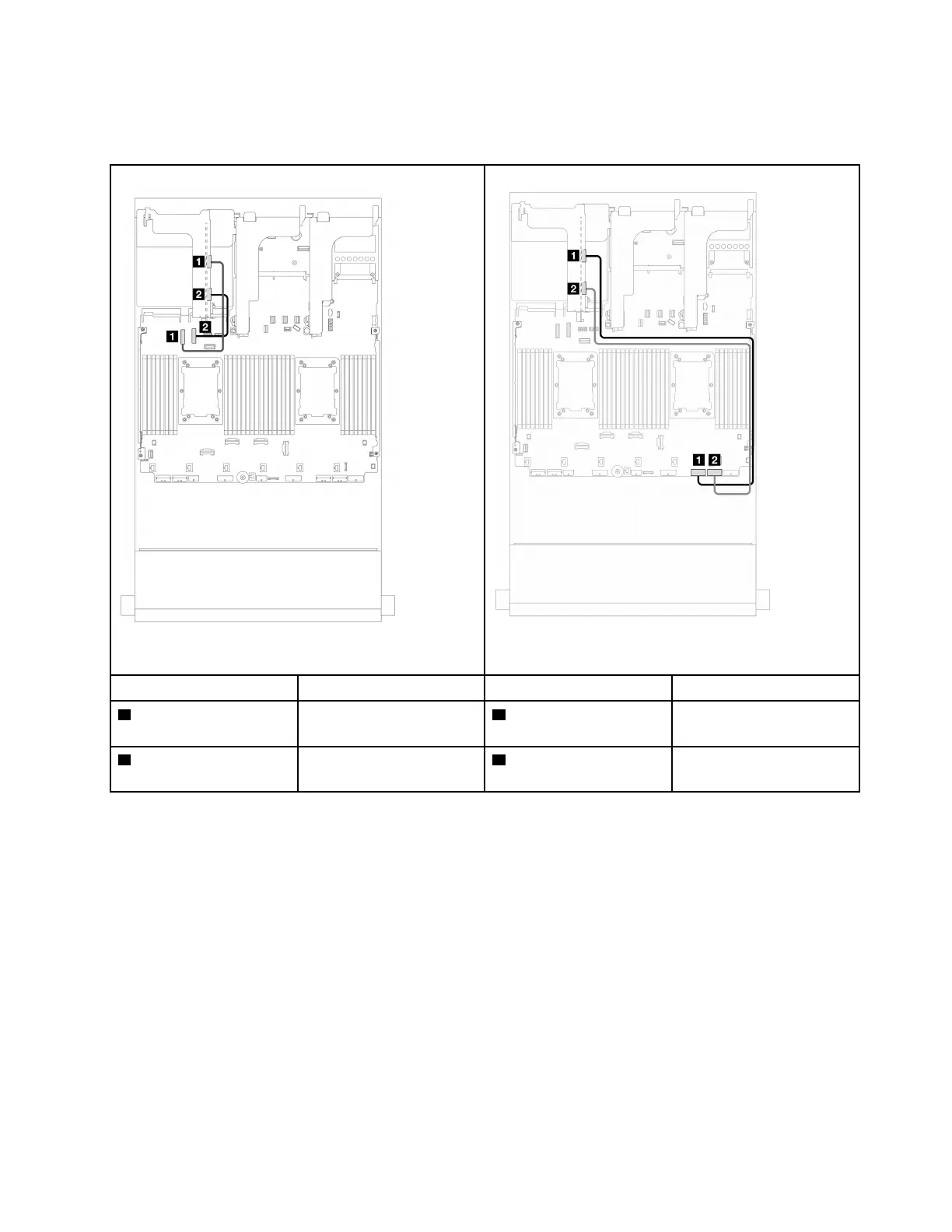
Riser card 3 (x8/x8 Gen 5 PCIe) signal cable connection
The following illustration shows the signal cable connections for the x8/x8 Gen 5 PCIe riser card 3.
Figure 271. Cable routing when two processors installed
Figure 272. Cable routing when one processor installed
From To From To
1 MCIO 1 on the riser card PCIe connector 9 on the
system board assembly
1 MCIO 1 on the riser card
(Gen 4)
PCIe connector 2 on the
system board assembly
2 MCIO 3 on the riser card PCIe connector 10 on the
system board assembly
2 MCIO 3 on the riser card
(Gen 5)
PCIe connector 1 on the
system board assembly
Chapter 6. Internal cable routing 293

Table of Contents

Related product manuals