EasyManua.ls Logo

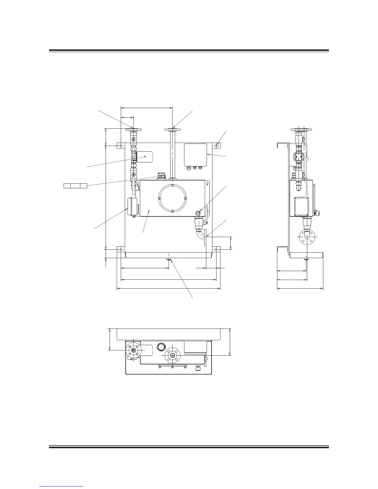
Man B&W S50ME-B9.3-TII - Suggestion for Small Heating Box with Filter

Man B&W S50ME-B9.3-TII
337 pages
Print Icon
To Next Page IconTo Next Page
To Next Page IconTo Next Page
To Previous Page IconTo Previous Page
To Previous Page IconTo Previous Page
Loading...
MAN B&W 9.02
Page 6 of 6
MAN Diesel
MAN B&W 98-26 engines 198 79 37-9.1
Box, 37 l
XC 8212 AL
From cylinder oil service
tank/storage tank
Flange: ø140
4xø18 PCD 100
(EN36F00420)
250µ
mesh filter
Level switch
925
154
113
460
74
425
850
920
91
112
To venting of cylinder
oil service tank
Flange: ø140
4xø18 PCD 100
(EN36F00420)
4xø19
for mounting
Coupling box for
heating element
and level switch
Temperature
indicator
To engine
connection AC
Flange ø140
4xø18 PCD 100
(EN362F0042)
Heating element 750 W
Set point 40 ºC
Drain from tray G 3/8
193
239
260
268
410
178 52 758.1
Fig. 9.02.05: Suggestion for small heating box with filter

Table of Contents

Related product manuals