EasyManua.ls Logo

REXROTH IndraDrive - Page 161

REXROTH IndraDrive
312 pages
Print Icon
To Next Page IconTo Next Page
To Next Page IconTo Next Page
To Previous Page IconTo Previous Page
To Previous Page IconTo Previous Page
Loading...
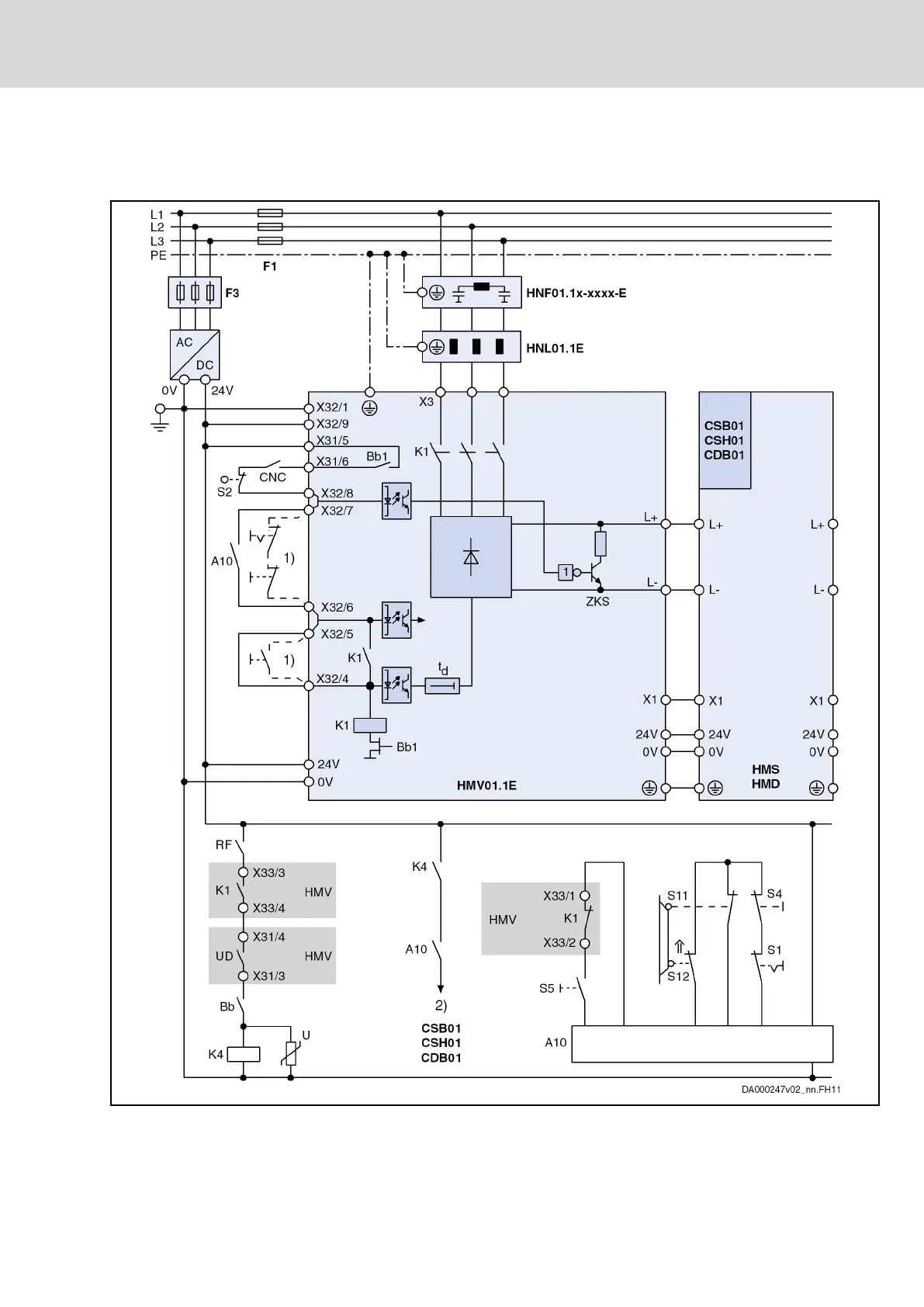
Control Circuit "DC Bus Short Circuit (ZKS) in the Case of Disturbed Electronic System of Drive" for the Mains
Connection of HMV01.1E Supply Units With Integrated Mains Contactor (e.g. HMV01.1E-W0030, -W0070, -
W0120)
F1 Fuse of power supply
F3 Fuse of 24V power supply unit
1) Control of K1, if A10 is not used
DOK-INDRV*-SYSTEM*****-PR06-EN-P
Rexroth IndraDrive Drive Systems with HMV01/02 HMS01/02, HMD01, HCS02/03
Bosch Rexroth AG 159/309
Circuits for the Mains Connection

Table of Contents

Related product manuals