EasyManua.ls Logo

Simphoenix V800 Series - Page 128

Default Icon
246 pages
Print Icon
To Next Page IconTo Next Page
To Next Page IconTo Next Page
To Previous Page IconTo Previous Page
To Previous Page IconTo Previous Page
Loading...
120
Description Of Specific Functions
V800 Series High Performance Closed-Loop Vector Inverter User Manual
F0.4.43 Start delay
Setting range:
0.00~10.00Sec.
Factory default: 0.0
Start delay means the waiting time before the inverter starts after receiving the running command.
F0.4.44 DC band-type brake
control
Setting range: 0000~0001
Factory default: 0
_ _ _ X : DC band-type brake control
The DC band-type brake means to lead DC current into the motor rotor so as to generate braking torque. The
DC band-type braking function cannot be used when synchronous motor is driven.
When both the set value and the actual speed of the motor has decreased below [F0.4.45], the inverter will
stop generating sine current but will inject direct current to the motor, and the current value is to be set by the
parameter [F0.4.47]. When the given speed or the motor speed has surpassed the parameter [F0.4.45], the
inverter will stop DC power supply and restore to the normal running status.
If it is started, the permission signal will be disconnected, and the DC band-type brake will be void.
F0.4.45 DC injection brake
application frequency
Setting range: 0.0Hz~[F0.1.21]
Factory default: 2.00
In the deceleration and stop process of the inverter, when the output frequency is lower than the DC
band-type brake/brake start frequency/speed, the DC band-type brake/brake function will be started.
F0.4.46 DC brake action time
Setting range: 0.00~10.00Sec.
Factory default: 0.0
F0.4.47 DC injection brake
current level
Setting range: 0.0~100%
Factory default: 50.0
The DC brake time is the duration of the output DC braking current. If it is selected that the external terminal
stop DC braking is effective, the parameter of DC braking action time will be void.
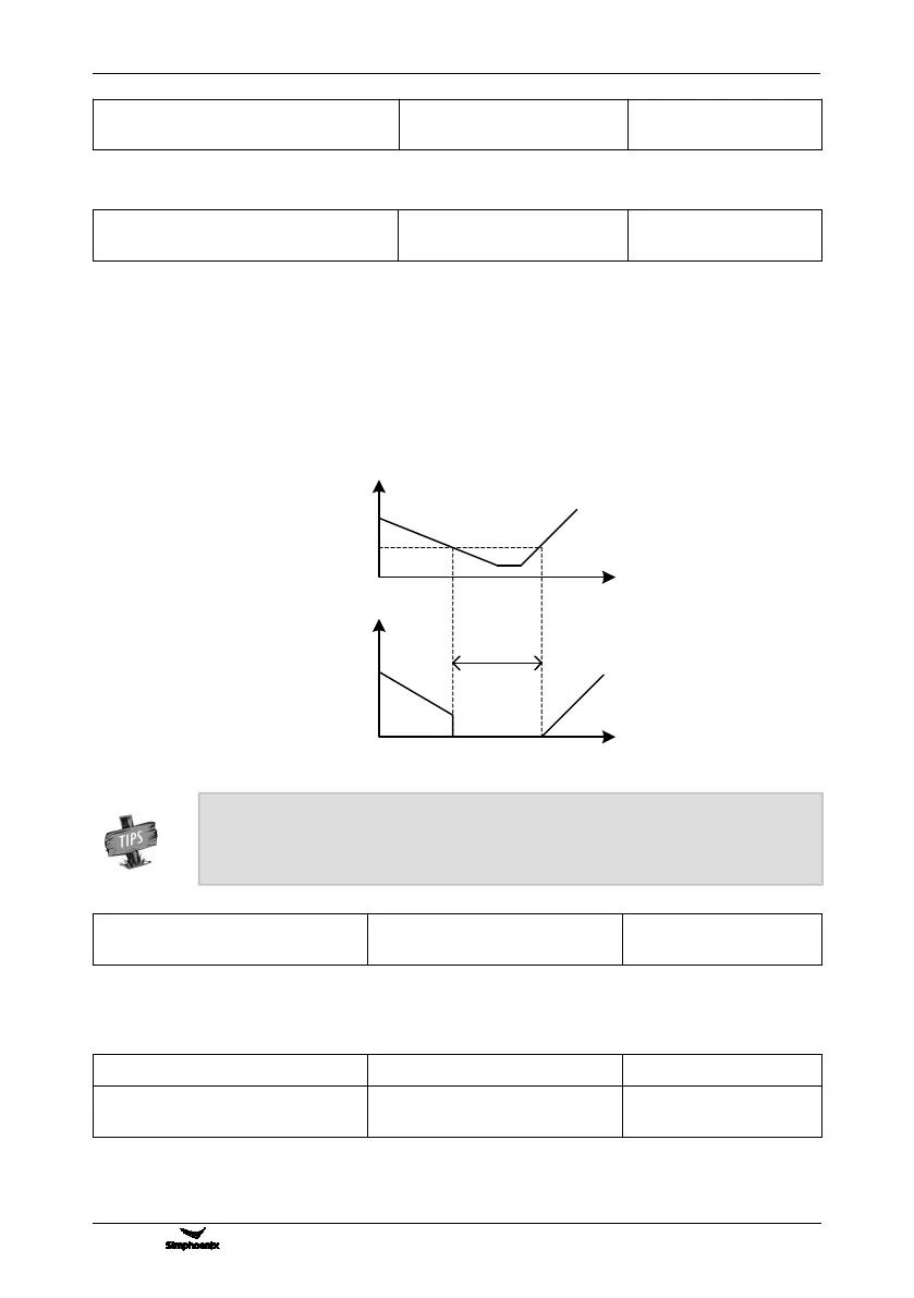
DC band-type
brake
Motor
revolution
Reference
value
[F0.4.45]
Time
Time
Figure 7-19 DC band-type brake sketch
Injecting current to the moor may lead over-temperature of the motor. In the circumstances
where long-time DC band-type brake is needed, forced air-cooling motor should be used.
During the long time of band-type braking, if there is constant load in the motor band-type
brake, DC band-type brake will not guarantee that the motor shaft will not rotate.

Table of Contents

Related product manuals