EasyManua.ls Logo

Vertiv Liebert STS2 - Figure 27 Electrical Field Connections, 400-600 A Liebert STS2;PDU Input with CB3 and CB3 A

Vertiv Liebert STS2
160 pages
Print Icon
To Next Page IconTo Next Page
To Next Page IconTo Next Page
To Previous Page IconTo Previous Page
To Previous Page IconTo Previous Page
Loading...
Vertiv | Liebert® STS2/PDU
User Manual | Rev. 6 | 10/2017 37
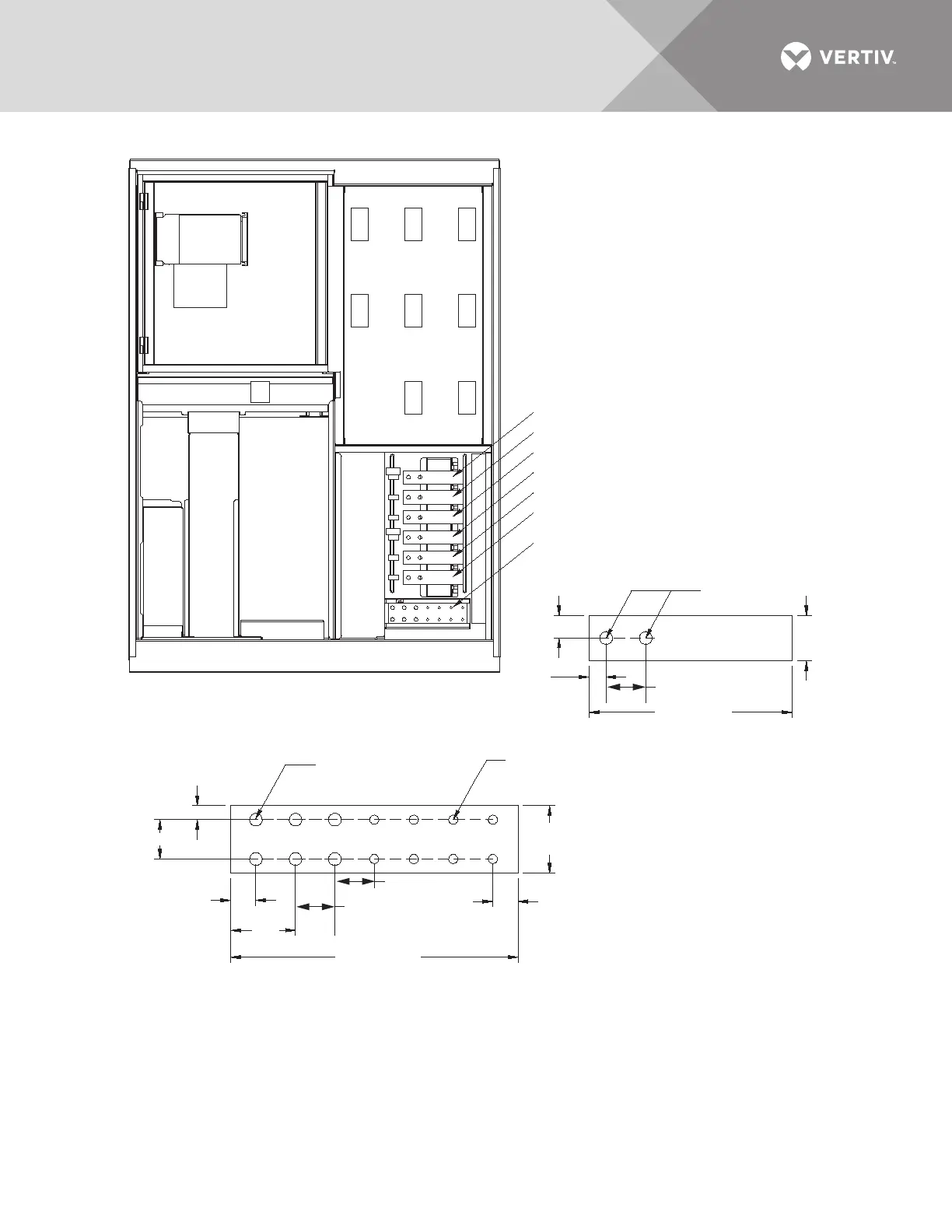
Figure 27 Electrical field connections, 400-600A Liebert STS2/PDU input with CB3 and CB3A
CB3A
Ground
CB6 CB1 CB2
CB7 CB5CB4
CB3
FRONT
Doors and Accent Panels
Not Shown
.56" DIA.
(14.3mm)
.75"
(19.1mm)
.56" DIA.
(14.3mm)
Typ. 6 Places
.41" DIA.
(10.3mm)
Typ. 8 Places
2"
(50.8mm)
1" (25.4mm)
1. Phase, neutral and ground busbars are 1/4" thick.
2. Control wiring and power wiring must be run
in separate conduit. Output cables should be run
in a separate conduit from input cables.
3. Aluminum and copper clad aluminum cables
are not recommended.
4. All wiring is to be in accordance with national
and local electrical codes
INPUT BUSBAR DETAIL, TYPICAL
GROUND BUSBAR DETAIL
PSP11013
Rev. 1
1.75" (44.5mm)
1.75" (44.5mm)
1.75" (44.5mm)
0.63"
(15.9mm)
1.13"
(28.6mm)
3"
(76.2mm)
1.13" (28.6mm)
2.88"
(73.2mm)
12.75" (323.9mm)
9" (228.6mm)
Source 1 Input Ø B
Source 1 Input Ø A
Source 1 Input Ø C
Source 2 Input Ø B
Source 2 Input Ø A
Source 2 Input Ø C
1.75" (44.5mm)
Typical

Table of Contents

Other manuals for Vertiv Liebert STS2

Related product manuals