EasyManua.ls Logo

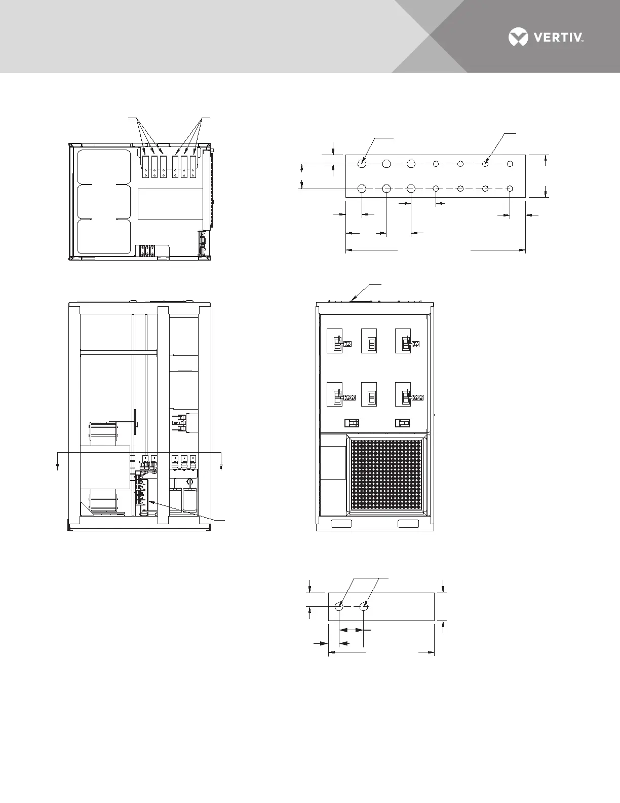
Vertiv Liebert STS2 - Figure 29 Electrical Field Connections, 800 A Liebert STS2;PDU Input with CB3 and CB3 A

Vertiv Liebert STS2
160 pages
Print Icon
To Next Page IconTo Next Page
To Next Page IconTo Next Page
To Previous Page IconTo Previous Page
To Previous Page IconTo Previous Page
Loading...
Vertiv | Liebert® STS2/PDU
User Manual | Rev. 6 | 10/2017 39
Figure 29 Electrical field connections, 800A Liebert STS2/PDU input with CB3 and CB3A
A A
SECTION A - A
SEE SECTION A - A
Ground busbar
(not shown) is
located under
Source #1
busbars.
Ground Busbar
See busbar detail.
Breaker
Section
CB6
CB1
CB2
CB7
CB5
CB4
CB3
CB3A
FRONT
Doors and Accent Panels
Not Shown
LEFT SIDE
Accent Panels Not Shown
.46" DIA.
(11.7mm)
.75"
(19.1mm)
.56" DIA.
(14.3mm)
Typ. 6 Places
.41" DIA.
(10.3mm)
Typ. 8 Places
2"
(50.8mm)
1" (25.4mm)
1. Phase, neutral and ground busbars are 1/4" thick.
2. Control wiring and power wiring must be run
in separate conduit. Output cables should be run
in a separate conduit from input cables.
3. Aluminum and copper clad aluminum cables
are not recommended.
4. All wiring is to be in accordance with national
and local electrical codes
INPUT BUSBAR DETAIL, TYPICAL
GROUND BUSBAR DETAIL
PSP11015
Rev. 1
1.75" (44.5mm)
1.75" (44.5mm)
1.75" (44.5mm)
Typical
0.63"
(15.9mm)
1.13"
(28.6mm)
3"
(76.2mm)
1.13"
(28.6mm)
2.88"
(73.2mm)
12.75" (323.9mm)
7.5" (190.5mm)
Source #1
Source #2
See Input
Busbar Detail
ABC ABC
1.75" (44.5mm)
Typical

Table of Contents

Other manuals for Vertiv Liebert STS2

Related product manuals