EasyManua.ls Logo

Vertiv Liebert STS2 - Figure 34 Electrical Field Connections, 400-600 A Liebert STS2;PDU with Left Side Output Breaker

Vertiv Liebert STS2
160 pages
Print Icon
To Next Page IconTo Next Page
To Next Page IconTo Next Page
To Previous Page IconTo Previous Page
To Previous Page IconTo Previous Page
Loading...
Vertiv | Liebert® STS2/PDU
User Manual | Rev. 6 | 10/2017 44
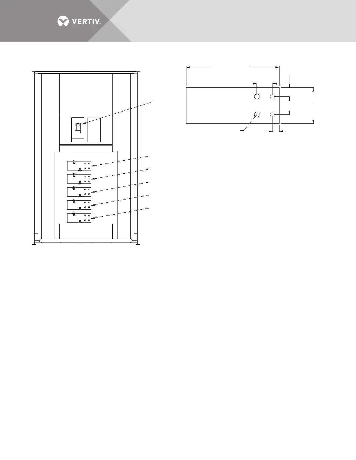
Figure 34 Electrical field connections, 400-600A Liebert STS2/PDU with left side output breaker
PSP11005
Rev. 1
LEFT SIDE
Doors and Accent Panels Not Shown
Output
Breaker
CB8
Phase A
Phase B
Phase C
Neutral
Ground
BUSBAR DETAIL
1. Phase and ground busbars are 1/4" thick.
2. Neutral busbar is 1/2" thick.
10.3" (262mm)
1"
(25.4mm)
1.75" (44.5mm)
2" (51mm)
4"
(102mm)
.56" DIA.
(14.2mm)
Typ. 4 Places
0.75"
(19mm)

Table of Contents

Other manuals for Vertiv Liebert STS2

Related product manuals