EasyManua.ls Logo

Vertiv Liebert STS2 - Distribution

Vertiv Liebert STS2
160 pages
Print Icon
To Next Page IconTo Next Page
To Next Page IconTo Next Page
To Previous Page IconTo Previous Page
To Previous Page IconTo Previous Page
Loading...
Vertiv | Liebert® STS2/PDU
User Manual | Rev. 6 | 10/2017 25
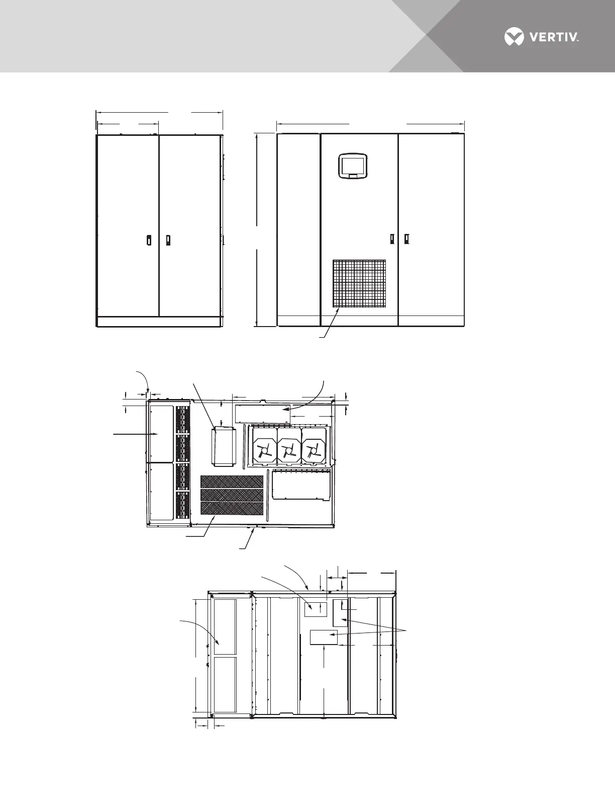
Figure 15 Outline drawing, 400-600A Liebert STS2/PDU with left side output breaker or I-Line distribution
Front
1.4"
(36mm)
1.9" (48mm)
3.3"
(84mm)
18.9"
(480mm)
1.8'
(46mm)
8"
(203mm)
39.6" (1006mm)
Air Exhaust
Bottom Output
Conduit Entry
Area, 2 Places
21.3" x 8.3"
(541 x 211mm)
11.5"
(292mm)
1. Approximate weight: 400A - 4608 lb. (2095kg)
600A - 5692 lb. (2587kg).
2. 18" (457mm) clearance above unit required for
air exhaust.
3. Installation and service access required in
front and left side only.
4. Keep cabinet within 15 degrees of vertical.
5. Color - IBM off-white.
6. Approximate heat output:
400A - 19,295 BTU/hr (5.66 kW)
600A - 29,238 BTU/hr (8.57 kW).
7. Unit bottom is structurally adequate for
forklift handling.
8. Open doors to replace air filter. Disposable
type, size 1 x 25 x 25 (25 x 635 x 635mm).
9. Top and bottom cable entry available through
removable access plates. Remove, punch to suit
conduit size and replace.
PSP11403
Rev. 2
Bottom Input
Power Conduit
Entry Area
Typically 2
10.4" x 5.4"
(264 x 137mm)
Bottom Control Conduit Entry Area
8.7" x 5.5" (221 x 140mm)
Air Intake Area
Do not block air filter
Top Input Power Conduit
Entry Area 21.4" x 7"
(54x 178mm)
120° Front Door Swing
All doors with lift-off hinges.
Top Control Conduit Box Entry
Area 12.9" x 6.8" (325 x 130mm)
See Drawing PSP13401
BOTTOM
43.6"
(1107mm)
17.2"
(437mm)
28.3"
(719mm)
2.3" (58mm)
2.3" (58mm)
TOP
LEFT SIDE
FRONT
49.4"
(1255mm)
23.9"
(606mm)
73.3" (1861mm)
77.4"
(1966mm)
4.4"
(112mm)
22.7"
(577mm)
Top Output
Conduit Entry
Area, 2 Places
21.9" x 8.8"
(556 x 224mm)

Table of Contents

Other manuals for Vertiv Liebert STS2

Related product manuals