EasyManua.ls Logo

Vertiv Liebert STS2 - Figure 36 Electrical Field Connections, 8600 A Liebert STS2;PDU with Left Side Output Breaker

Vertiv Liebert STS2
160 pages
Print Icon
To Next Page IconTo Next Page
To Next Page IconTo Next Page
To Previous Page IconTo Previous Page
To Previous Page IconTo Previous Page
Loading...
Vertiv | Liebert® STS2/PDU
User Manual | Rev. 6 | 10/2017 46
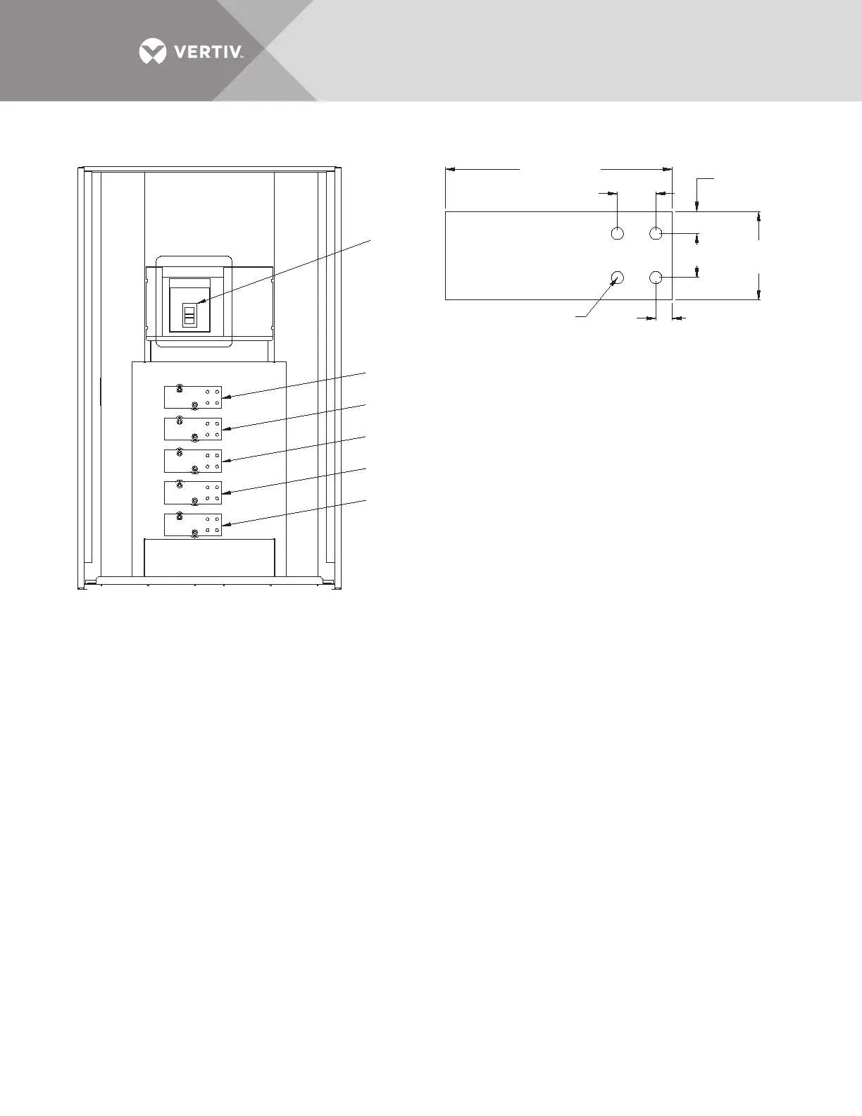
Figure 36 Electrical field connections, 8600A Liebert STS2/PDU with left side output breaker
PSP11007
Rev. 0
LEFT SIDE
Doors and Accent Panels Removed
Output
Breaker
CB8
Phase A
Phase B
Phase C
Neutral
Ground
Notes
1. Phase and ground busbars are 1/4" thick.
2. Neutral busbar is 1/2" thick.
BUSBAR DETAIL
10.3" (262mm)
1"
(25.4mm)
2" (51mm)
1.75" (44.5mm)
0.75" (19mm)
4"
(102mm)
0.56" (14.2mm)
Typical, 4 Places

Table of Contents

Other manuals for Vertiv Liebert STS2

Related product manuals