EasyManua.ls Logo

Vertiv Liebert STS2 - Distribution

Vertiv Liebert STS2
160 pages
Print Icon
To Next Page IconTo Next Page
To Next Page IconTo Next Page
To Previous Page IconTo Previous Page
To Previous Page IconTo Previous Page
Loading...
Vertiv | Liebert® STS2/PDU
User Manual | Rev. 6 | 10/2017 26
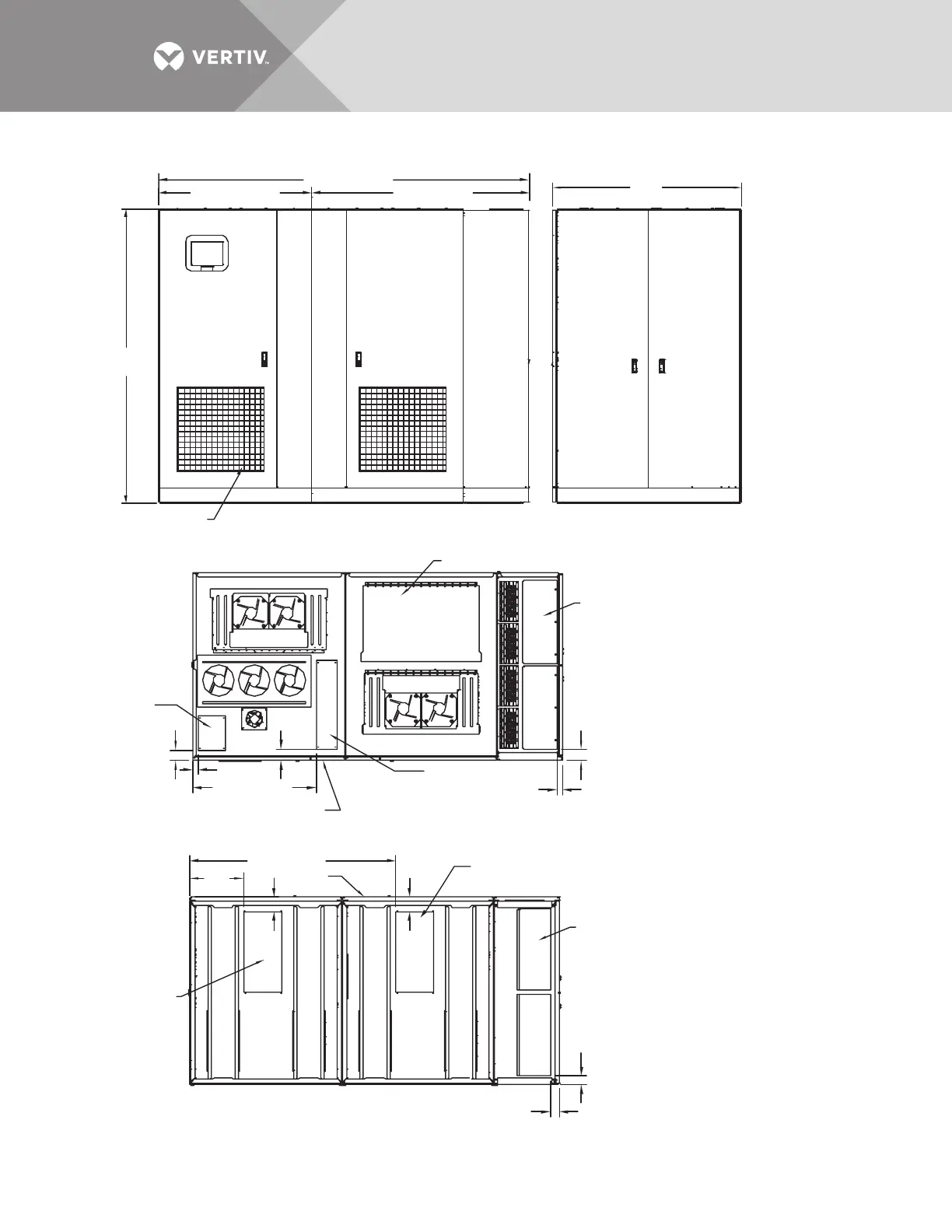
Figure 16 Outline drawing, 800A Liebert STS2/PDU with right side output breaker or I-Line distribution
Front
1. Approximate weight: 8618 lb. (3917kg)
2. 18" (457mm) clearance above unit
required for air exhaust.
3. Installation and service access required
in front and right side only.
4. Keep cabinet within 15 degrees of vertical.
5. Color - IBM off-white.
6. Approximate heat output:
39,238 BTU/hr (11.5 kW)
7. Unit bottom is structurally adequate for
forklift handling.
8. Open doors to replace air filter. Disposable
type size 1 x 25 x 25 (25 x 635 x 635mm).
9. Top and bottom cable entry available through
removable access plates. Remove, punch
to suit conduit size and replace.
PSP11800
Rev. 1
Bottom Input
Power Conduit
Entry Area,
21" x 10" (533 x 254mm)
Bottom Output
Power Conduit
Entry Area, 2
21.3" x 8.3"
(541 x 211mm)
Top Output
Conduit Entry
Area (2)
21.9" x 8.8
(553 x 224mm)
Air Intake Area
Do not block air filter.
Typical
Top Input Power
Conduit Entry Area
23.2" x 5.5"
(589 x 140mm)
Hinged Access Panel
120° Front Door Swing
All doors with lift-off hinges
Top Control
Conduit Entry Area
9" x 7.1"
(229 x 180mm)
Bottom Control
Conduit Entry
Area 21" x 10"
(533 x 254mm)
BOTTOM
2.3"
(58mm)
2.3"
(58mm)
2.9"
(74mm)
3.8"
(97mm)
3.8"
(97mm)
2.9"
(74mm)
2.7"
(69mm)
1.4" (36mm)
1.4"
(36mm)
14.2"
(361mm)
54" (1372mm)
32.3" (820mm)
TOP
RIGHT SIDE
FRONT
49.4"
(1255mm)
96.9" (2461mm)
57" (1448mm)
Shipping Split
39.9" (1013mm)
Shipping Split
77.4"
(1966mm)

Table of Contents

Other manuals for Vertiv Liebert STS2

Related product manuals