EasyManua.ls Logo

Vertiv Liebert STS2 - Switch Option

Vertiv Liebert STS2
160 pages
Print Icon
To Next Page IconTo Next Page
To Next Page IconTo Next Page
To Previous Page IconTo Previous Page
To Previous Page IconTo Previous Page
Loading...
Vertiv | Liebert® STS2/PDU
User Manual | Rev. 6 | 10/2017 32
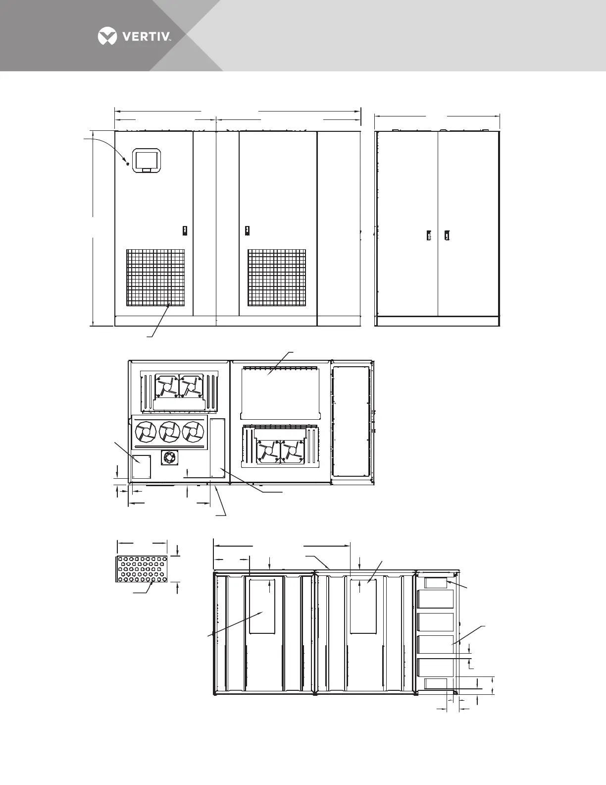
Figure 22 Outline drawing, 800A Liebert STS2/PDU, inline distribution, right side with key lockout switch option
2.3" (58mm)
2.3"
DETAIL A
7.2" (183mm)
0.88 " Diameter
Typically 42 Places
1.9" (48mm) Typical
1.4" (36mm)
2.7" (69mm)
2.9"
(74mm)
1. Approximate weight: 8618 lb. (3917kg)
2. 18" (457mm) clearance above unit
required for air exhaust.
3. Installation and service access required in
front and right side only.
4. Keep cabinet within 15 degrees of vertical.
5. Color - IBM off-white.
6. Approximate heat output: 39,238 BTU/hr
(11.5 kW)
7. Unit bottom is structurally adequate for
forklift handling.
8. Open doors to replace air filter. Disposable
type, size 1 x 25 x 25 (25 x 635 x 635mm).
9. Top and bottom cable entry available through
removable access plates. Remove, punch
to suit conduit size and replace.
PSP11807
Rev. 1
Bottom Output
Conduit Entry
Area, Typical 4
Places; See
Detail Area A
Bottom Subfeed
Conduit Entry Area,
Typical 2 Places
8.3" x 4"
(211 x 102mm)
Air Intake Area
Do not block air filter.
Typical
Top Input Power Conduit
Entry Area 23.2" x 5.5"
(589 x 140mm)
Hinged Access Panel
120° Front Door Swing
All doors with lift-off hinges
BOTTOM
4.9"
(124mm)
3.8"
(97mm)
3.8"
(97mm)
14.2"
(361mm)
13.6"
(345mm)
TOP
FRONT
RIGHT SIDE
49.4"
(1255mm)
96.9" (2461mm)
Key
Lockout
Switch
57" (1448mm)
Shipping Split
39.9" (1013mm)
Shipping Split
77.4"
(1966mm)
Bottom Input Power
Conduit Entry Area,
21" x 10" (533 x 254mm)
Bottom Control
Conduit Entry
Area 21" x 10"
(533 x 254mm)
7"
(178mm)
Top Control
Conduit Entry
Area 9" x 7.1"
(229 x 180mm)
Front
54" (1372mm)
32.3" (820mm)

Table of Contents

Other manuals for Vertiv Liebert STS2

Related product manuals