EasyManua.ls Logo

Vertiv Liebert STS2 - Distribution

Vertiv Liebert STS2
160 pages
Print Icon
To Next Page IconTo Next Page
To Next Page IconTo Next Page
To Previous Page IconTo Previous Page
To Previous Page IconTo Previous Page
Loading...
Vertiv | Liebert® STS2/PDU
User Manual | Rev. 6 | 10/2017 28
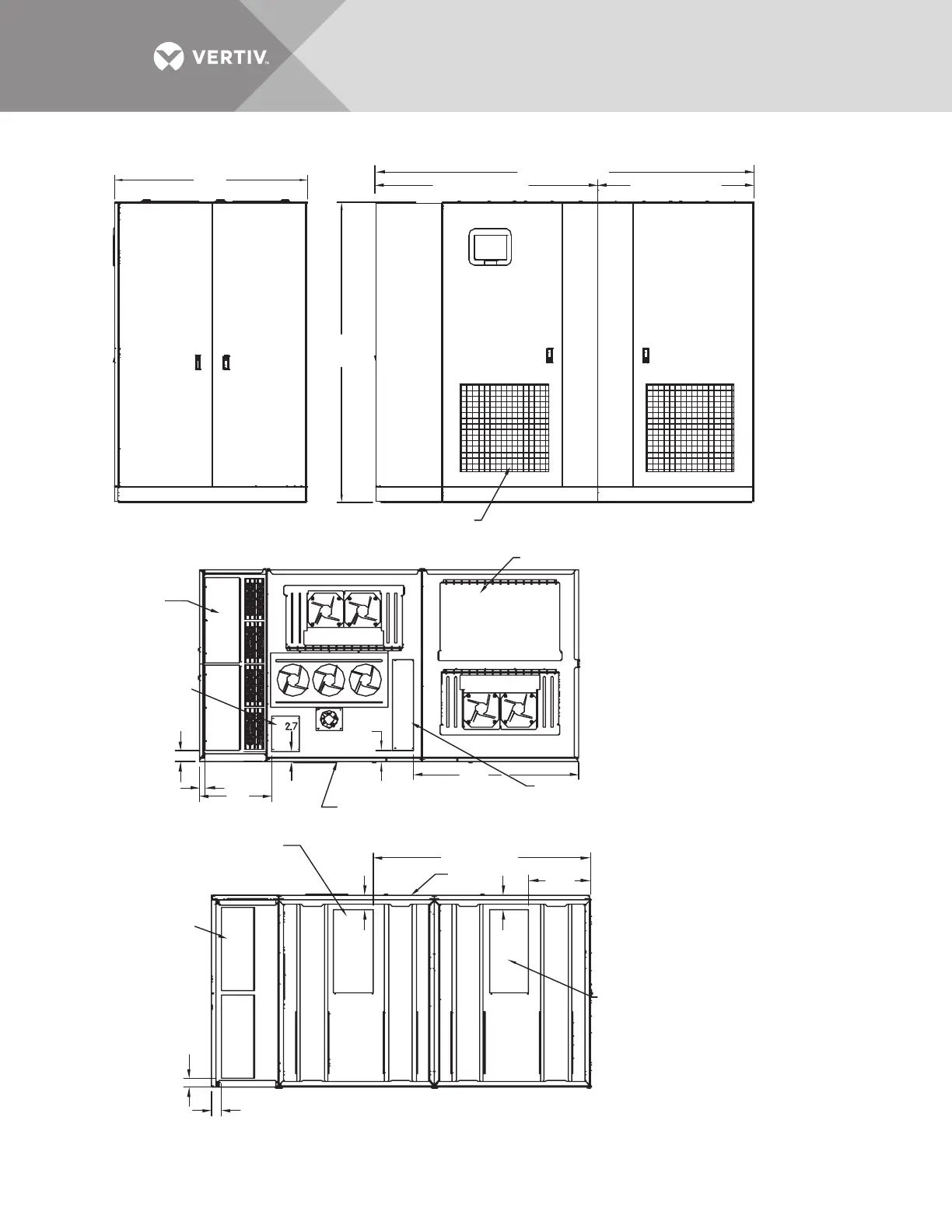
Figure 18 Outline drawing, 800A Liebert STS2/PDU with left side output breaker or I-Line distribution
Front
1. Approximate weight: 8618 lb. (3917kg)
2. 18" (457mm) clearance above unit
required for air exhaust.
3. Installation and service access required in
front and left side only.
4. Keep cabinet within 15 degrees of vertical.
5. Color - IBM off-white.
6. Approximate heat output: 39,238 BTU/hr
(11.5 kW)
7. Unit bottom is structurally adequate for
forklift handling.
8. Open doors to replace air filter.
Disposable type size 1 x 25 x 25
(25 x 635 x 635mm).
9. Top and bottom cable entry available
through removable access plates.
Remove, punch to suit conduit size
and replace.
PSP11802
Rev. 1
Bottom Output
Conduit Entry
Area, 2 Places
21.3" x 8.3"
(541 x 211mm)
Air Intake Area
Do not block air filter.
Typical
Top Input Power
Conduit Entry Area
23.2" x 5.5"
(589 x 140mm)
Hinged
Access Panel
120° Front Door Swing
All doors with lift-off hinges
Top Control
Conduit Entry
Area 9" x 7.1"
(229 x 180mm)
Bottom Control
Conduit Entry
Area 21" x 10"
(533 x 254mm)
BOTTOM
2.3"
(58mm)
2.3"
(58mm)
2.9"
(74mm)
3.8"
(97mm)
3.8"
(97mm)
2.9" (74mm)
18.3"
(465mm)
1.4" (36mm)
14.2"
(361mm)
54" (1372mm)
41.9"
(1064mm)
TOP
LEFT SIDE
FRONT
49.4"
(1255mm)
96.9" (2461mm)
57" (1448mm)
Shipping Split
39.9" (1013mm)
Shipping Split
77.4"
(1966mm)
Top Output
Conduit Entry
Area (2)
21.9" x 8.8
(553 x 224mm)
Bottom Input Power
Conduit Entry Area,
21" x 10" (533 x 254mm)

Table of Contents

Other manuals for Vertiv Liebert STS2

Related product manuals