EasyManua.ls Logo

WinGD X92 - Auxiliary Blower: Maintenance; Removal; Preparation; Removal − Driving End

Default Icon
574 pages
Print Icon
To Next Page IconTo Next Page
To Next Page IconTo Next Page
To Previous Page IconTo Previous Page
To Previous Page IconTo Previous Page
Loading...
Maintenance65451/A1
Winterthur Gas & Diesel Ltd.
2/ 6
2. Removal
2.1 Preparation
1) Stop the engine.
2) Set the power supply to off.
3) Disconnect the electrical connection from the electric motor (2).
4) Read and obey the data given in 0012-1 General Guidelines for Lifting Tools.
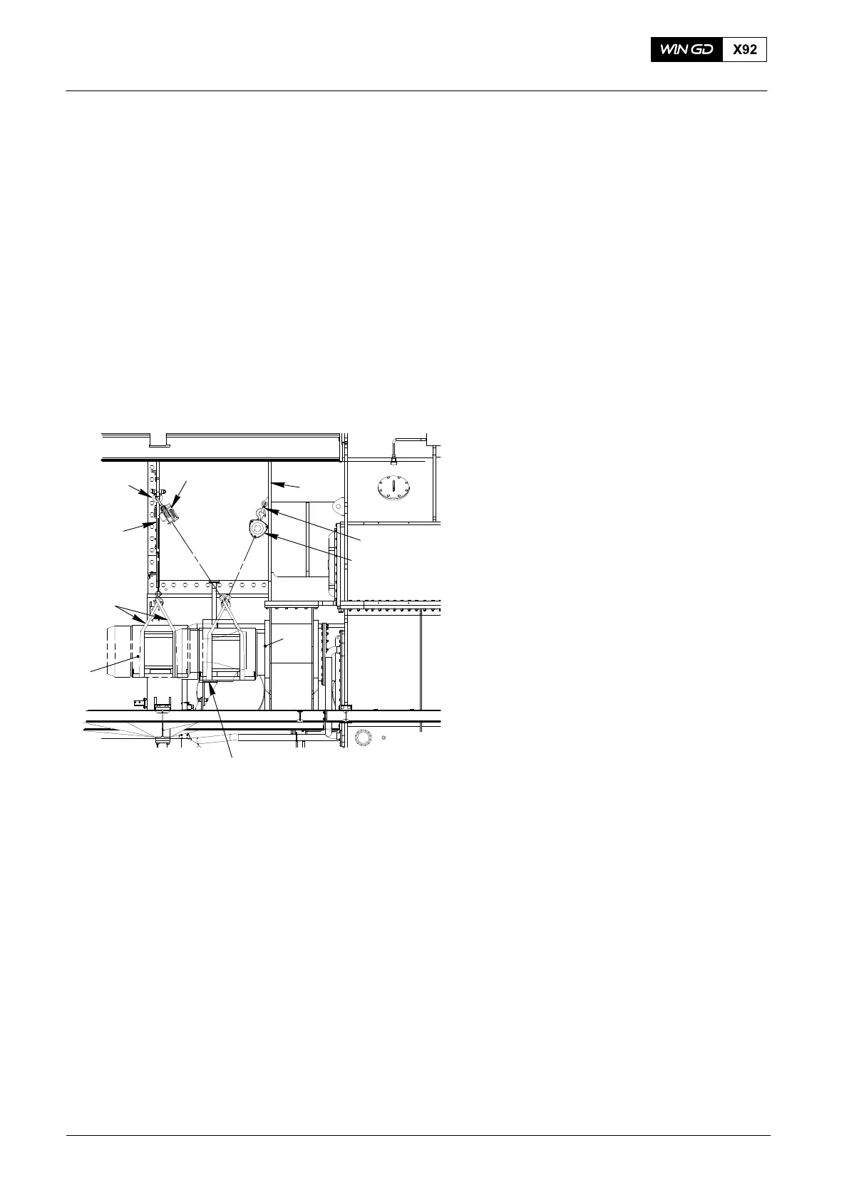
2.2 Removal driving end
1) Attach chain block 94017-029 (H1) with
shackle 94019L to the strut (4), see
Fig. 2.
2) Attach chain block 94017-028 (H2) with
shackle 94019K to the strut (5).
3) Put two round slings 94039-013 around
the electric motor (1) of the auxiliary
blower and attach them to chain blocks
(H1) and (H2).
4) Operate the chain blocks (H1) and (H2)
to apply sufficient tension on the slings
to hold the mass of the electric motor
(1, 1200kg).
5) Remove the four screws (3) from the
support.
6) Remove the screws from the flange (2).
7) Use chain blocks (H1) and (H2)
together to carefully move the electric
motor (1) horizontally out of the blower
casing.
8) Slacken the chain block (H2) until the
electric motor (1) hangs only on chain
block (H1).
9) Remove chain block (H2).
201508
Auxiliary Blower: Maintenance
Fig. 2
94039013
94019L
WCH03041
1
4
94017029
94017028
94019K
H2
H1
2
3
5

Table of Contents

Related product manuals