EasyManua.ls Logo

Dieci APOLLO MINI AGRI - Page 250

Dieci APOLLO MINI AGRI
313 pages
Print Icon
To Next Page IconTo Next Page
To Next Page IconTo Next Page
To Previous Page IconTo Previous Page
To Previous Page IconTo Previous Page
Loading...
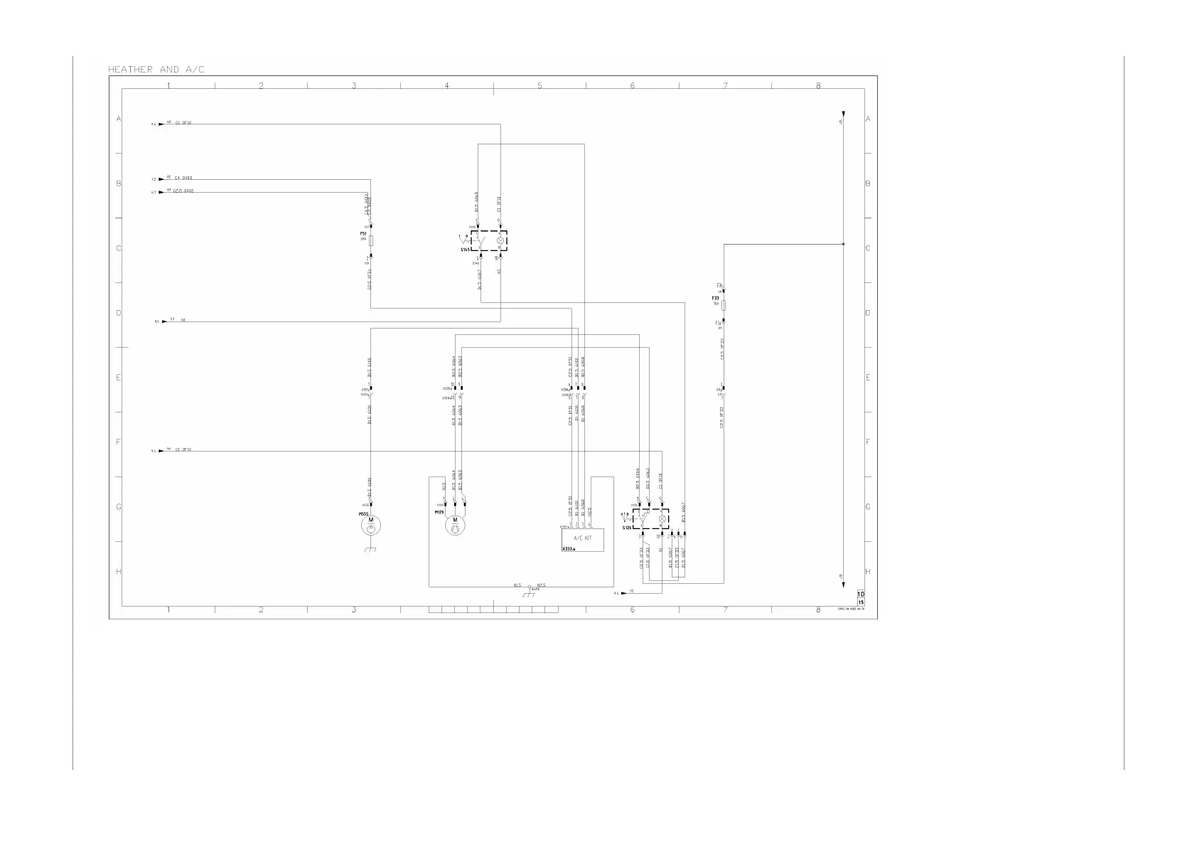
20 | Wiring diagram Dieci
250 / 313 AXH1230‐UK ﴾ENG﴿ ‐ Apollo KM
Illustration17: WiringdiagramAPOLLOKE20150914_Page_10

Table of Contents

Related product manuals