EasyManua.ls Logo

Dieci APOLLO MINI AGRI - Fork Shifter Technical Data

Dieci APOLLO MINI AGRI
313 pages
Print Icon
To Next Page IconTo Next Page
To Next Page IconTo Next Page
To Previous Page IconTo Previous Page
To Previous Page IconTo Previous Page
Loading...
Technical data | 22
AXH1230‐UK ﴾ENG﴿ ‐ Apollo KM 267
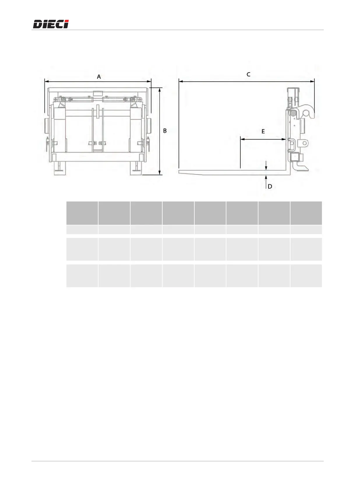
22.8 Fork shifter technical data
Code
A
B
C
D
E
Capacity
Weight
BCV8070 1170mm
(46.06in)
755mm
(29.72in)
1540mm
(60.63in)
120x45mm
(4.72x1.77
in)
500mm
(19.69in)
2500kg
(5511.56lb)
320kg
(705.48lb)
BCV8077 1470mm
(57.87in)
755mm
(29.72in)
1540mm
(60.63in)
120x45mm
(4.72x1.77
in)
500mm
(19.69in)
2500kg
(5511.56lb)
350kg
(771.62lb)

Table of Contents

Related product manuals