EasyManua.ls Logo

Edwards GXS - Page 89

Edwards GXS
132 pages
Print Icon
To Next Page IconTo Next Page
To Next Page IconTo Next Page
To Previous Page IconTo Previous Page
To Previous Page IconTo Previous Page
Loading...
© Edwards Limited 2017. All rights reserved. Page 81
Edwards and the Edwards logo are trademarks of Edwards Limited.
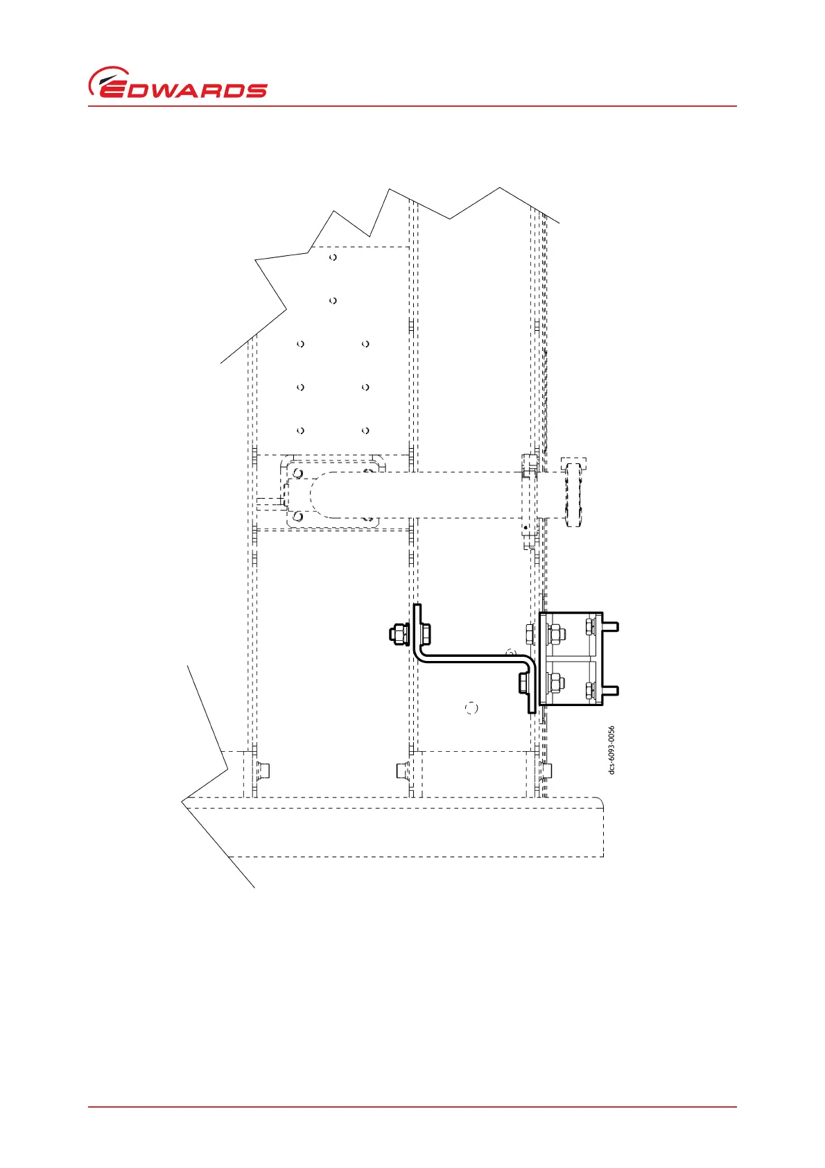
Exhaust silencer mounting assembly
M588-08-880 Issue D
Figure 59 - Silencer brace fitment
Note: Viewed from underneath the pump to show mounting bracket positions for exhaust silencer.

Table of Contents

Related product manuals