EasyManua.ls Logo

Emerson Fisher FLOBOSS 407 - Figure 4-6. Communications Card Location; Setting Jumpers

Emerson Fisher FLOBOSS 407
200 pages
Print Icon
To Next Page IconTo Next Page
To Next Page IconTo Next Page
To Previous Page IconTo Previous Page
To Previous Page IconTo Previous Page
Loading...
FloBoss 407 Instruction Manual
Rev 5/00 4-9
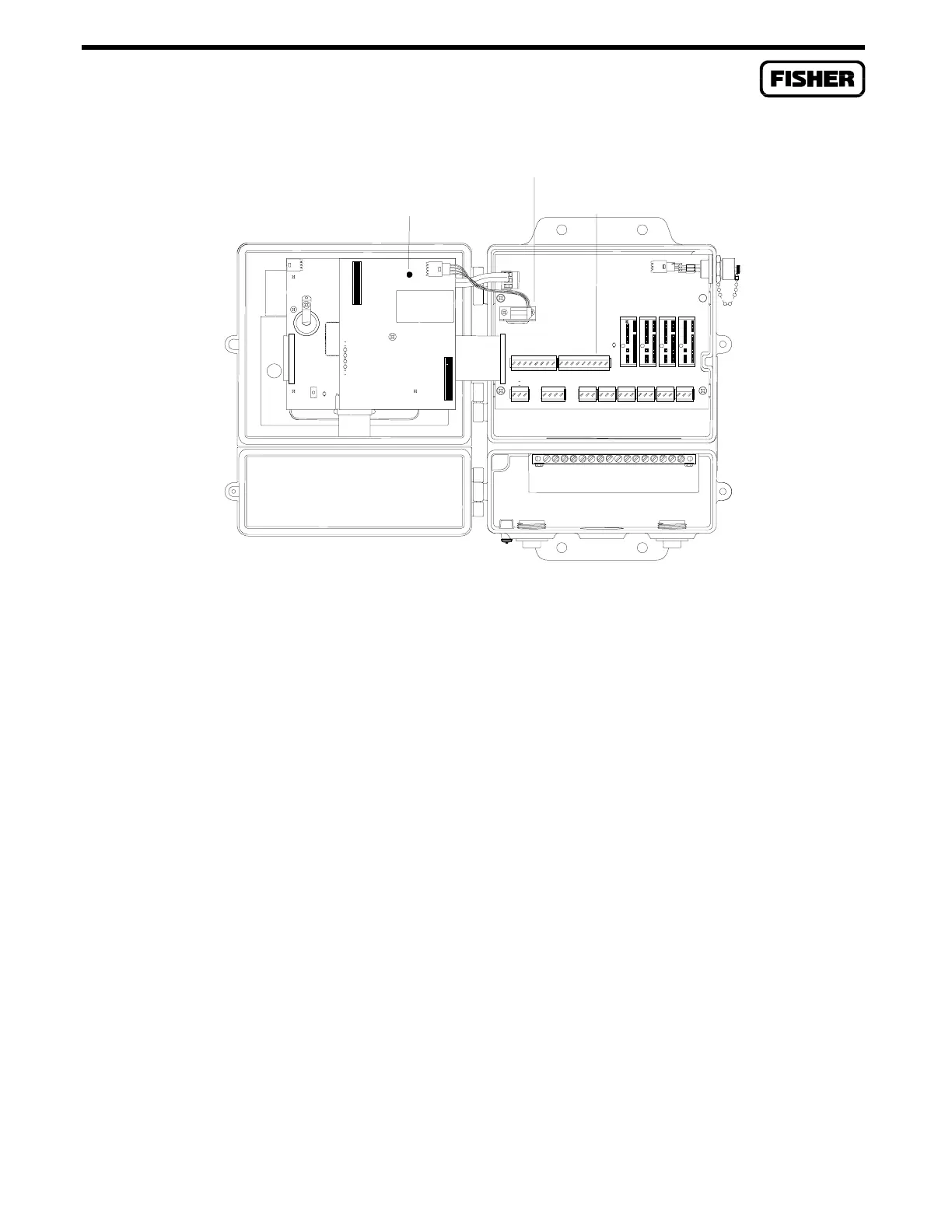
COM2
DOC0208B
COMMUNICATIONS CARD
PHONE JACK
Figure 4-6. Communications Card Location
4.3.2 Setting Jumpers
The EIA-422/485, radio modem, and leased-line modem cards make use of jumpers to select certain
operational modes. It is essential that these jumpers be in their proper position for correct operation of
the modem.
For the EIA-422/485 serial card, there is a jumper that may need to be set, depending on the mode
being used and whether a multi-drop configuration is needed. Refer to Figure 4-2 for jumper locations
and to Section 4.4.2 on Page 4-13 for details on how to set this jumper.
For the radio and leased-line modem cards, refer to Figure 4-3 and Figure 4-4 for jumper locations.
Table 4-2 shows the operating modes and the associated jumper positions for the cards.
The radio modem card uses jumper P6 to enable power control for keying up a radio. The jumper
either grounds or isolates the push-to-talk (PTT) return line, which is used to key up a radio to transmit.
Jumper P6 has a default setting of GND (ground), but it can be set to ISO (isolated) to achieve a
floating PTT return if the radio circuitry requires it.
The leased-line modem card is set at the factory for 2-wire operation. To use it for 4-wire operation,
jumpers P3, P4, and P5 must be placed in the positions indicated in Table 4-2.

Table of Contents

Related product manuals