EasyManua.ls Logo

Emerson Fisher FLOBOSS 407 - Figure 2-2. Floboss 407 Outline and Mounting Dimensions; Installing Floboss 407 Options and Accessories

Emerson Fisher FLOBOSS 407
200 pages
Print Icon
To Next Page IconTo Next Page
To Next Page IconTo Next Page
To Previous Page IconTo Previous Page
To Previous Page IconTo Previous Page
Loading...
FloBoss 407 Instruction Manual
2-12 Rev 5/00
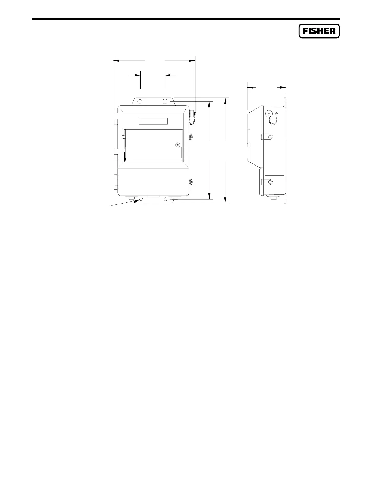
.38 DIA MTG
HOLES
DOC0205A
11.15 12.00
9.32
2.81
4.36
Figure 2-2. FloBoss 407 Outline and Mounting Dimensions
2.3.2 Installing FloBoss 407 Options and Accessories
To install a Remote MVS, refer to the instructions in Appendix B. To install I/O Modules in the
FloBoss 407, refer to Section 3.3. To install a communications card in the FloBoss 407, refer to
Section 4.3.
To install a padlock adapter on the FloBoss 407, follow the procedure below. Installation of other
accessories for the FloBoss 407, such as solar panels and battery enclosures, is discussed in the
ROC/FloBoss Accessories Instruction Manual (Form A4637).
The optional padlock adapter (not available for the Measurement Canada FloBoss 407) installs on the
captive screw that secures the electronics cover. With the shank of the padlock (purchased separately)
running through the stainless steel adapter, the screw is inaccessible and the cover cannot be opened.
The padlock shank can be up to 0.25 inch in diameter, and the body of the padlock can be up to 1.5
inches wide.
To install the padlock adapter:
1.
Open the main (electronics) cover of the FloBoss 407.
2.
Remove the old retaining washer from the screw and discard the washer.
3.
Position the screw, adapter, and new washer as displayed in Figure 2-3.
4.
Thread the screw through the washer and into the enclosure using a screwdriver.

Table of Contents

Related product manuals