EasyManua.ls Logo

Festo CPX - Page 103

Festo CPX
234 pages
Print Icon
To Next Page IconTo Next Page
To Next Page IconTo Next Page
To Previous Page IconTo Previous Page
To Previous Page IconTo Previous Page
Loading...
3. Installation
3−23
Festo P.BE−CPX−SYS−EN en 0902e
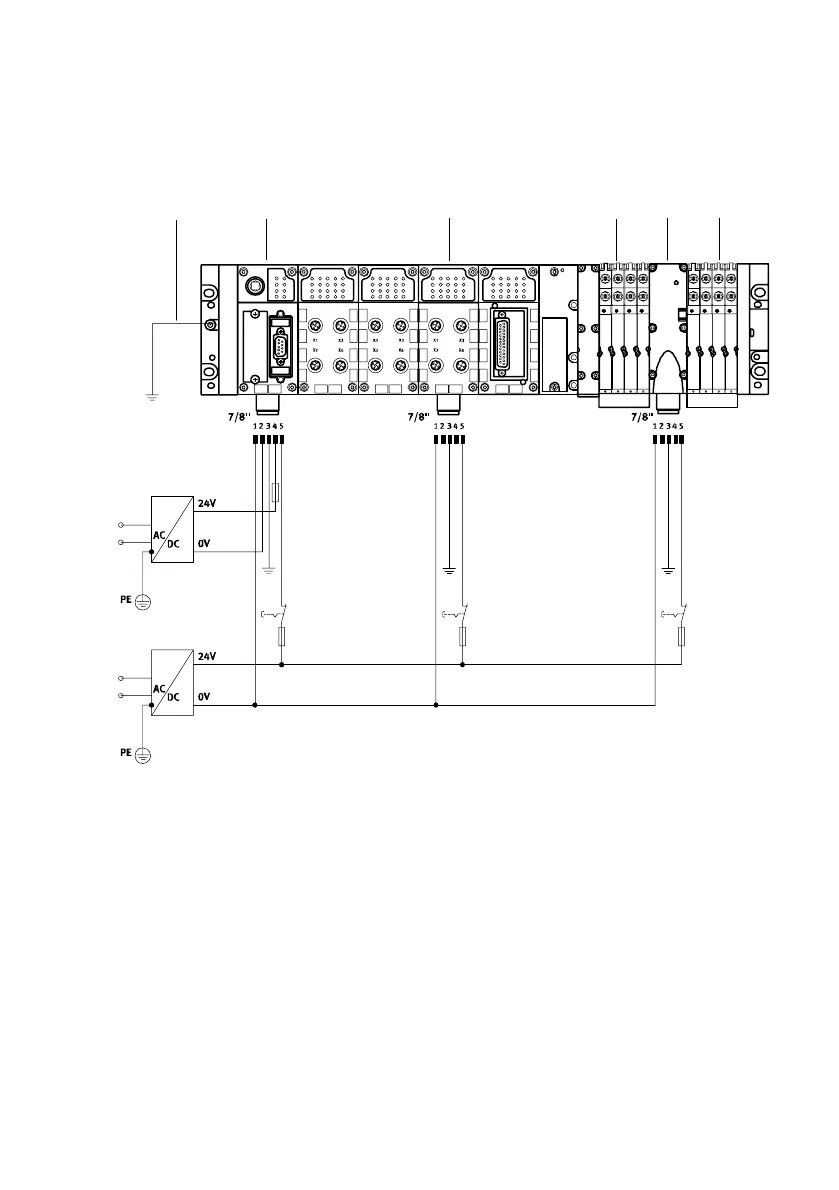
1
2
3
4
5 6
1
Potential equalisation of functional
earth (FE)
2 Interlinking block with system supply,
type CPX−GE−EV−S−7/8−5POL
3 Interlinking block with additional
supply for outputs,
type CPX−GE−EV−Z−7/8−5POL
4 MPA pneumatic module, supplied by
the system supply 2
5 Electrical supply plate with additional
power supply for valves,
typeVMPA−FB−SP−7/8−V−5POL
6 MPA pneumatic module, supplied by
the additional supply 5
Fig.3/6: Example power supply with separate circuits, separate power supply unit and
interlinking blocks with 5−pin 7/8" plugs (basic circuit diagram)

Table of Contents

Other manuals for Festo CPX

Related product manuals