EasyManua.ls Logo

Festo CPX - Page 102

Festo CPX
234 pages
Print Icon
To Next Page IconTo Next Page
To Next Page IconTo Next Page
To Previous Page IconTo Previous Page
To Previous Page IconTo Previous Page
Loading...
3. Installation
3−22
Festo P.BE−CPX−SYS−EN en 0902e
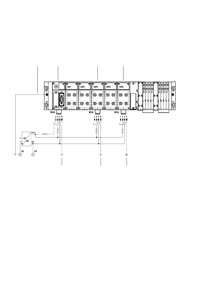
Connection example 2 Fig.3/5 shows an example connection with system supply
and an additional supply each for electric outputs and valves.
1
11
2 3 4
1
1 Potential equalisation of functional earth (FE)
2 Interlinking block with system supply, type CPX−GE−EV−S
3 Interlinking block with additional supply for outputs, type CPX−GE−EV−Z
4 Interlinking block with additional supply for outputs, type CPX−GE−EV−V
Fig.3/5: Example additional load supplies with a shared 24 V power supply (all sup
plies with M18 plugs)
Connection example 3 Fig.3/6 shows an example connection with separate circuits
for power supply. Interlinking blocks with 5−pin 7/8" or push−
pull plugs are used to do
this.

Table of Contents

Other manuals for Festo CPX

Related product manuals