EasyManua.ls Logo

Fuji Electric FRENIC-VG Series - External Dimension Diagram; Internal Block Diagram

Fuji Electric FRENIC-VG Series
346 pages
To Next Page IconTo Next Page
To Next Page IconTo Next Page
To Previous Page IconTo Previous Page
To Previous Page IconTo Previous Page
Loading...
6.10 Synchro Interface
6-213
Chap. 6
CONTROL OPTIONS
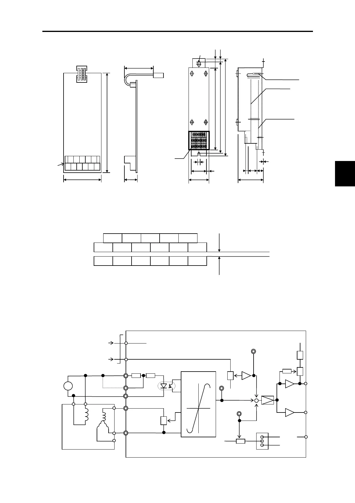
6.10.3 External dimension diagram
Unit: mm Unit: mm
Figure 6.10.1 OPC-VG1-SN
External Dimensions
Figure 6.10.2 MCA-VG1-SN
External Dimensions
Terminal block layout
Figure 6.10.3 MCA-VG1-SN Terminal Block Layout
6.10.4 Internal block diagram
Figure 6.10.4 Internal Block Diagram
OPC-VG1-SN
terminal block (11-M3)
Motherboard
terminal block (6-M3)
S4 S3 SY2 UL V
N15M P15S3 S2 S1
S2 S1 SY1 UH
1
S2
S1
M
50/60H
Synchronous
rectification
90
90
-1
-1
3
2
UH
UL
V
SY1
SY2
VR
3
1
2
VR2
R1 R2
S1
S3
S2
VR3
2
1
3
M
M
CH2
CH3
-1
-1
VR4
2
3
1
S3
S4
S2
P
N
1
2
3
SC1
Potential auxiliary input
(position voltage signal input)
Synchro transmission
VR1
CH1
M
130
70
50
22.6
Terminal block
11-M3
Connecto
r
(CN1)
23
7.5 195
170
210
R3
R6
17-M3
6
OPC-VG1-SN
Motherboard
1.2
833
10
9
50
70
MCA-
VG1-SN

Table of Contents

Related product manuals