EasyManua.ls Logo

Garmin G3X - Page 152

Garmin G3X
1011 pages
Print Icon
To Next Page IconTo Next Page
To Next Page IconTo Next Page
To Previous Page IconTo Previous Page
To Previous Page IconTo Previous Page
Loading...
190-01115-01 G3X™/G3X Touch™ Avionics Installation Manual
Rev. AV Page 14-9
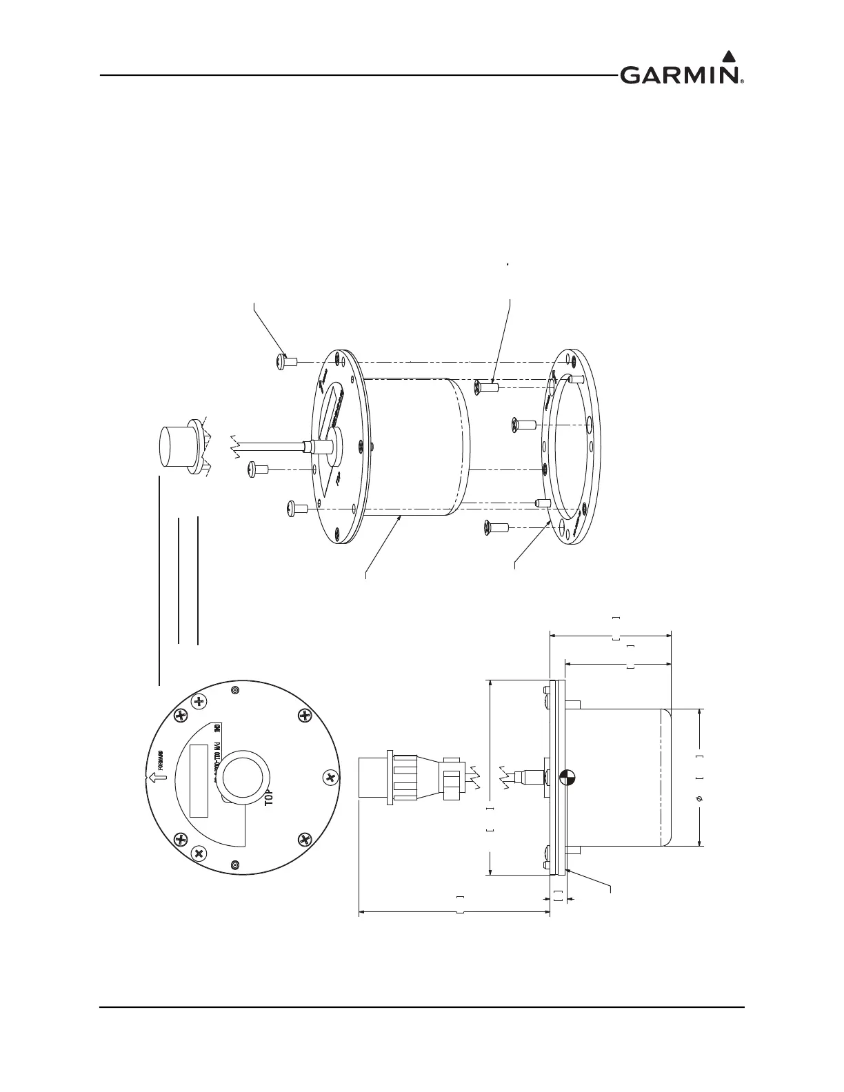
Figure 14-5 GMU 22 Top Mounted Installation
.3 8
A
IRCRAFT MOUNTING
SURFACE
1.84 46.61
85.603.37
53.342.10
60.332.38
16.2 412
DIMENSIONS: INCHES [mm]. METRIC VALUES ARE FOR
DIMENSIONS ARE NOMINAL AND TOLERANCES ARE
1.
2.
REFERENCE ONLY.
NOT IMPLIED UNLESS SPECIFICALLY STATED.
NOTES:
GMU 22 INSTALLATION
FROM ABOVE
(PREFERRED)
REQUIRED
GMU 22
HEAD BRASS SCREWS
#6-32 100
FLAT
(-00 IS SHOWN)
115-00481-00 OR
MOUNTING RACK
AIRCRAFT
115-00481-10
#6-32 PAN
HEAD BRASS SCREWS
0.24 [6.1] MAX THREAD LENGTH
WITHOUT CLEARANCE HOLES
(211-60037-08 SUPPLIED WITH
011-00871-00 GMU 22
CONNECTOR KIT)

Table of Contents

Other manuals for Garmin G3X

Related product manuals