EasyManua.ls Logo

Garmin G3X - Page 153

Garmin G3X
1011 pages
Print Icon
To Next Page IconTo Next Page
To Next Page IconTo Next Page
To Previous Page IconTo Previous Page
To Previous Page IconTo Previous Page
Loading...
190-01115-01 G3X™/G3X Touch™ Avionics Installation Manual
Rev. AV Page 14-10
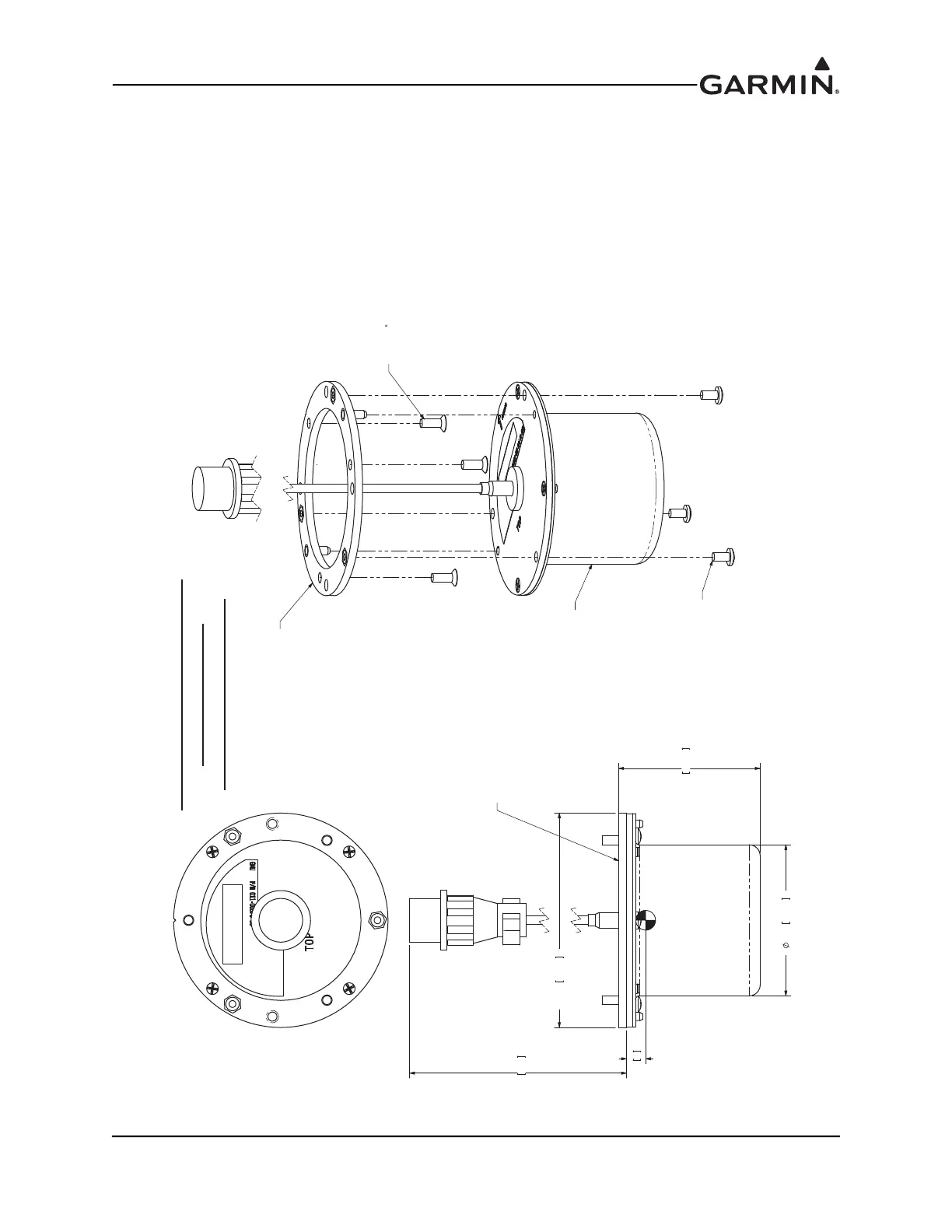
Figure 14-6 GMU 22 Bottom Mounted Installation
.3 8
GMU 22
#6-32 100 FLAT
HEAD BRASS SCREWS
REQUIRED
#6-32 PAN
HEAD BRASS SCREWS
0.24 [6.1] MAX THREAD LENGTH
WITHOUT CLEARANCE HOLES
(211-60037-08 SUPPLIED WITH
011-00871-00 GMU 22
CONNECTOR KIT)
115-00481-00
OR 115-00481-10
AIRCRAFT
MOUNTING RACK
(-00 IS SHOWN)
AIRCRAFT MOUNTING
SURFACE
2.23 56.52
2.38 60.33
16.2 412
3.370 85.60
GMU 22 INSTALLATION
FROM BELOW
(NOT PREFERRED)
NOTES:
DIMENSIONS: INCHES [mm]. METRIC VALUES ARE FOR1.
REFERENCE ONLY.
DIMENSIONS ARE NOMINAL AND TOLERANCES ARE2.
NOT IMPLIED UNLESS SPECIFICALLY STATED.

Table of Contents

Other manuals for Garmin G3X

Related product manuals