EasyManua.ls Logo

Huawei NetCol8000-A045D - Netcol500-A120; Netcol500-A110

Huawei NetCol8000-A045D
369 pages
Print Icon
To Next Page IconTo Next Page
To Next Page IconTo Next Page
To Previous Page IconTo Previous Page
To Previous Page IconTo Previous Page
Loading...
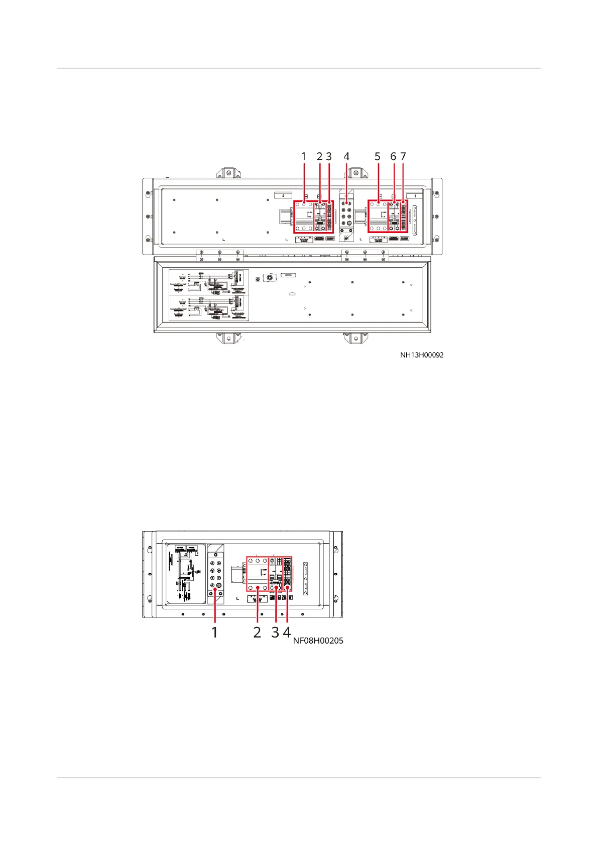
A.2.3 NetCol500-A120
Figure A-9 NetCol500-A120 electric control box (without a temperature control
intelligent monitoring board)
(1) Fan switch (QF3) (2) Low temperature component switch (QF4)
(3) Fan terminal 2 (4) PE bar
(5) Fan switch (QF1) (6) Low temperature component switch (QF2)
(7) Fan terminal 1
A.2.4 NetCol500-A110
Figure A-10 NetCol500-A110 electric control box (without a temperature control
intelligent monitoring board)
(1) PE bar
(2) Fan switch (QF1)
(3) Receiver heater/Water cooling module
(QF2)
(4) Fan terminal
NetCol8000-A(045, 055, 060, 090, 120) In-room Air
Cooled Smart Cooling Product
User Manual A Electric Control Box Layout
Issue 05 (2020-10-10) Copyright © Huawei Technologies Co., Ltd. 314

Table of Contents