Home
Huawei
Air Conditioner
NetCol8000-A045D
Page 342
Huawei NetCol8000-A045D - Page 342
369 pages
Manual
Save Page as PDF
To Next Page
To Next Page
To Previous Page
To Previous Page
Loading...
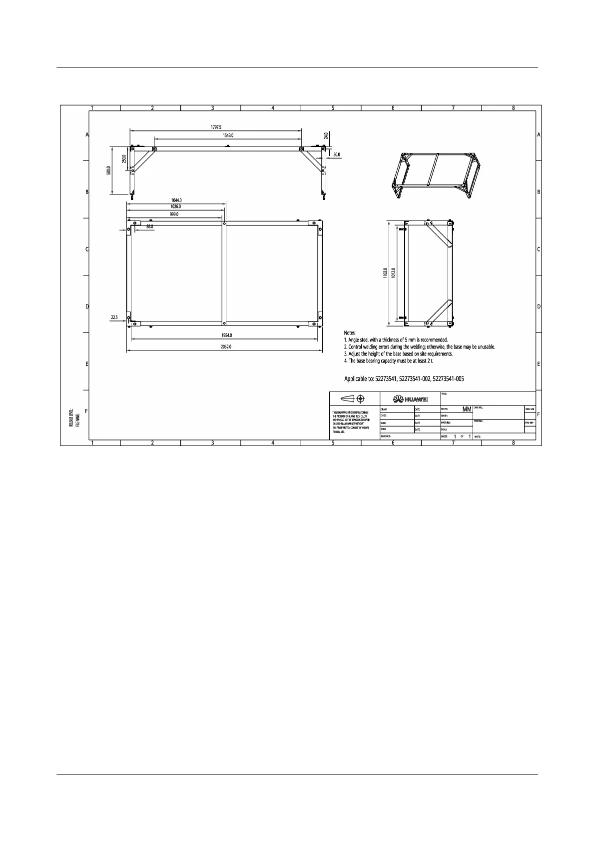
Figure B-17
Support base f
or the NetCol500-A080
NetCol8000-A(045, 055, 060, 090, 120) In-room Air
Cooled Smart Cooling Product
User Manual
B Base
Issue 05 (2020-10-10)
Copyright © Huawei T
echnologies Co., Ltd.
332
341
343
Table of Contents
Main Page
About this Document
3
Table of Contents
5
1 Safety Information
11
General Safety
11
Personnel Requirements
14
Electrical Safety
14
Installation Environment Requirements
16
Mechanical Safety
18
Cooling System Safety
20
Others
21
2 Product Description
22
Model Number Description
22
Indoor Unit Model Number Description
22
Outdoor Unit Model Number Description
23
Water-Cooled Module Model Number Description
24
Overview
25
Component Description
28
Indoor Unit
28
Indoor Unit
29
Display Module
37
Main Control Module
40
Outdoor Unit
43
Low Temperature Component
43
Water-Cooled Module
44
Physical Ports
45
3 Technical Specifications
47
Indoor Unit
47
Outdoor Unit
50
Low Temperature Component
54
Water-Cooled Module
55
Operating Environment
56
4 System Installation
61
Installation Requirements
61
Layout Principles (Netcol500-A060/Netcol500-A080/Netcol500-A120)
61
Layout Principles (Netcol500-A110)
62
Requirements for Installing the Indoor Unit
63
Outdoor Unit Installation Requirements
66
Installation Requirements for the Water-Cooled Module
71
Installation Preparation
73
Tools
73
Materials
76
Refrigerant
77
Refrigerant Oil
78
Refrigerant Pipe Components
78
Humidifier Water Inlet Pipe
80
Drainpipe
80
Water Inlet and Outlet Pipes for the Water-Cooled Module
81
Pipe Support
82
Cable
82
Unpacking and Checking
85
Installing the Indoor Unit
86
Checking the Indoor Unit Pressure
86
Removing the Transport Fixing Sheet Metals
88
Removing the Indoor Unit Pallet
88
Removing the Transport Fasteners from the Compressor
89
Securing the Indoor Unit
90
Installing an Outdoor Unit
90
Checking the Outdoor Unit Pressure
90
Removing the Outdoor Unit Pallet
92
Installing an Outdoor Unit
93
Horizontal Installation Scenario (Netcol500-A060/Netcol500-A080/Netcol500-A120)
93
Horizontal Installation Scenario (Netcol500-A110)
95
Vertical Installation Scenario (Netcol500-A060/Netcol500-A080)
95
Vertical Installation (Netcol500-A120)
100
Installing the Water Cooling Module
102
Checking the Nitrogen Pressure
102
Removing the Pallet
103
Securing a Water Cooling Module
103
Optional) Installing a Low Temperature Component
104
Checking the Nitrogen Pressure
104
Removing Transport Fasteners
105
Securing the Low Temperature Component
105
Connecting Pipelines
106
Notices for Laying Pipes
106
Welding Indoor Unit Pipes
109
Connecting Outdoor Unit Pipes
117
Optional) Welding Pipes for the Low Temperature Component
118
Welding the Water Cooling Module
119
Installing Cooling Water Pipes for the Water Cooling Module
120
Optional) Connecting the Humidifier Water Inlet Pipe
120
Connecting the Drainpipe
121
Leakage Test with Nitrogen
125
Optional) Leakage Test with Water for the Water-Cooled Module
130
Connecting Cables
131
Connecting the Equipotential Ground Cable
131
Connecting Power Cables
132
Connecting Signal Cables
139
Connecting the Signal Cable between the Outdoor Unit and Indoor Unit
139
Connecting Water Sensor Cables
141
Optional) Installing a Micro Differential Pressure Sensor
143
Optional) Connecting T/H Sensors Outside Cabinets
146
Optional) Installing Teamwork and Monitoring Communications Cables
148
Preparing a Network Cable
148
CAN Teamwork + RS485 Monitoring
149
CAN Teamwork + FE Monitoring
151
FE Teamwork + RS485 Monitoring
151
FE Teamwork + FE Monitoring
153
Optional) Installing a Cap (Applicable to Upflow Units)
154
Lowering a Fan (Applicable to Downflow Units)
157
5 Verifying the Installation
160
Indoor Unit Installation Verification
160
Outdoor Unit Installation Verification
162
Checking the Water Cooling Module
163
6 Power-On Commissioning
164
Vacuumizing and Precharging Refrigerant
164
Requirements on the Filling Amount of Refrigerant and Refrigerant Oil
164
Vacuumizing
167
Precharging Refrigerant
172
Preparing for Power-On
178
Power-On
179
Home Screen
187
Initial Configuration
189
Setting T/H Sensor Parameters
189
Optional) Setting the Pressure Difference Control
192
Optional) Setting Teamwork Parameters
192
Setting Communications Parameters
198
Setting Access Control Parameters
198
Setting Communications Parameters (Modbus-RTU Protocol)
199
Setting Communications Parameters (Modbus-TCP Protocol)
200
Setting Communications Parameters (SNMP Protocol)
201
Optional) Setting Wifi Parameters
204
Startup
205
Charging the Remaining Refrigerant
209
Wizard Startup
210
Optional) Power-Off
212
Checking after Commissioning
212
7 Webui
214
Preparations and Webui Login
214
Introduction to the Webui
217
8 Operation and Maintenance
218
Data Record
218
Indoor Unit Routine Maintenance
219
Monthly Maintenance
219
Quarterly Maintenance
220
Yearly Maintenance
221
Outdoor Unit Routine Maintenance
222
Monthly Maintenance
222
Semi-Annual Maintenance
223
Water Cooling Module Routine Maintenance
224
Monthly Maintenance
224
Semi-Annual Maintenance
225
9 Troubleshooting
226
10 Alarm Reference
231
11 Parts Replacement
266
Replacing an Air Filter
266
Replacing a Differential Pressure Switch
268
Replacing a Drive
269
Replacing a Fan Drive (Netcol8000-A055/A060/A120)
270
Replacing a Wet Film Humidifier
272
Replacing an Electric Heater
273
Replacing an Electric Heater (Upflow)
274
Replacing an Electric Heater (Downflow)
275
Replacing a Compressor
276
Replacing a Filter Dryer
280
Replacing an Indoor Fan
282
Replacing an Indoor Fan (Netcol8000-A045U)
282
Replacing an Indoor Fan (Netcol8000-A060U)
285
Replacing an Indoor Fan (Downflow)
287
Replacing a Liquid Level Detector
290
Replacing an Outdoor Fan
291
Replacing a Display Module
293
12 Faq
296
How Do I Issue a Start/Shutdown Command
296
Operations with a USB Flash Drive
297
How Do I Export Data
298
How Do I Import and Export a Configuration File
299
How Do I Import a Certificate and Key
300
Display Module Screen Operations
301
How Do I Set LAN Parameters
301
How Do I Check Temperature and Humidity Curves
302
How Do I View Logs
303
How Do I View Component Status
303
How Do I View System Parameters
304
How Do I View Version Information
304
How Do I View the Service Information
304
How Do I Check Teamwork Control Information
305
How Do I Mute or Silence a Buzzer
305
How Do I Handle Alarms
305
How Do I Clear Component Runtime
306
How Do I Calibrate a T/H Sensor
307
How Do I Change the Password
307
How Do I Set Alarm Parameters
308
How Do I Commission a Component
309
How Do I Query the Setting of a Parameter before Change
310
Webui Operations
310
How Do I Manage Webui Users
311
How Do I Install a Network Security Certificate
313
How Do I View Active Alarms and Historical Alarms
313
How Do I Export or Import a Configuration File
314
How Do I Export Fault Information
314
How Do I Change an IP Address
315
How Do I View Version Information
315
A Electric Control Box Layout
316
Indoor Unit
316
Netcol8000-A045/A090/A055
316
Netcol8000-A060/A120
319
Outdoor Unit
320
Netcol500-A060
320
Netcol500-A080
322
Netcol500-A120
324
Netcol500-A110
324
Netcol500-W055
325
B Base
326
Indoor Unit
326
Netcol8000-A045D
326
Netcol8000-A045U
327
Netcol8000-A055D
328
Netcol8000-A060D
329
Netcol8000-A060U
330
Netcol8000-A090D
331
Netcol8000-A120D
332
Outdoor Unit
332
Low Temperature Component
333
Netcol500-A060
334
Netcol500-A080
341
Netcol500-A110
346
Netcol500-A120
347
Netcol500-W055
350
C Cooling Component Layout
351
D Power Cable Filter for an Outdoor Unit
352
E Electrical Diagrams
353
Indoor Unit
353
Netcol8000-A045
353
Netcol8000-A055
355
Netcol8000-A060
357
Netcol8000-A090
359
Netcol8000-A120
361
Outdoor Unit
362
Netcol500-A060
363
Netcol500-A080
364
Netcol500-A110
365
Netcol500-A120
366
Netcol500-W055
367
F Acronyms and Abbreviations
368
Other manuals for Huawei NetCol8000-A045D
Quick Guide
47 pages
Related product manuals
Huawei NetCol8000-A045U
369 pages
Huawei NetCol8000-A055D
369 pages
Huawei NetCol8000-A
38 pages
Huawei NetCol8000-A Series
215 pages
Huawei NetCol5000-A
269 pages
Huawei NetCol500-A060
47 pages
Huawei NetCol500-A080
47 pages
Huawei NetCol5000-A025
318 pages
Huawei NetCol5000-A035
244 pages