EasyManua.ls Logo

Kollmorgen SERVOSTAR 300

Kollmorgen SERVOSTAR 300
138 pages
To Next Page IconTo Next Page
To Next Page IconTo Next Page
To Previous Page IconTo Previous Page
To Previous Page IconTo Previous Page
Loading...
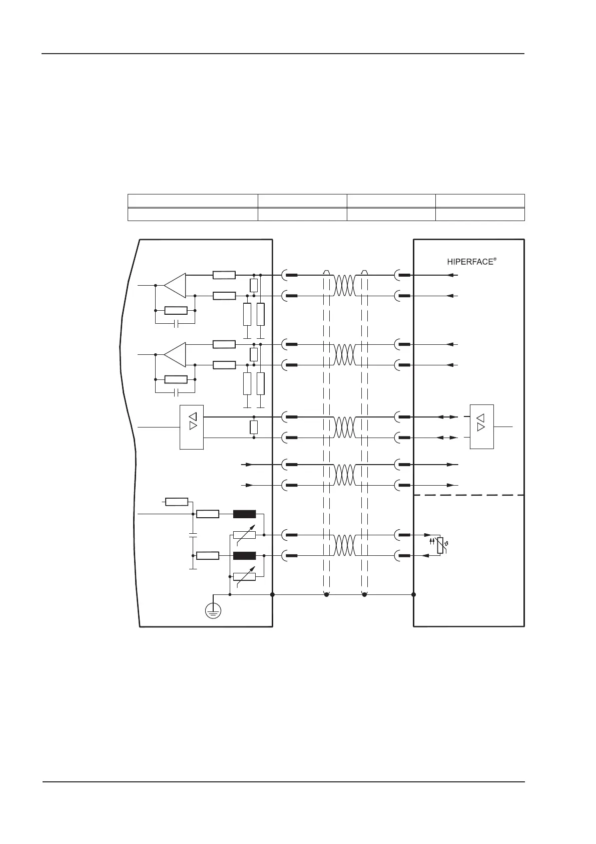
8.12.8 Sine Encoder with HIPERFACE (X1)
Wiring of a single-turn or multi-turn sine-cosine encoder with HIPERFACE interface as a
feedback system (primary and secondary, ð p.66).
The thermal control in the motor is connected via the encoder cable to X1 and evaluated
there. All signals are connected using our pre-assembled encoder connection cable.
If cable lengths of more than 50m are planned, please consult our customer service.
Frequency limit (sin, cos): 350 kHz
Type FBTYPE EXTPOS GEARMODE
HIPERFACE 2 9 9
The pin assignment shown on the encoder side relates to the Kollmorgen motors.
74 S300 Instructions Manual
Electrical installation 02/2017 Kollmorgen
4
2
10k
10k
10k
10k
+
-
-
+
13
5
3
11
9
1
X1
2
4
0V
U
P
1
9
11
3
13
5
RS485
REFSIN
REFCOS
+COS
+SIN
U
P
0V
B
A
max. 250mA
7.5V ...11V
min. 5VDC/5mA
77
1414
Motor
voltage supply
Encoder
thermal control
S300
SubD 15
round, 17-pin

Table of Contents

Other manuals for Kollmorgen SERVOSTAR 300

Related product manuals