EasyManua.ls Logo

Kollmorgen SERVOSTAR 300

Kollmorgen SERVOSTAR 300
138 pages
To Next Page IconTo Next Page
To Next Page IconTo Next Page
To Previous Page IconTo Previous Page
To Previous Page IconTo Previous Page
Loading...
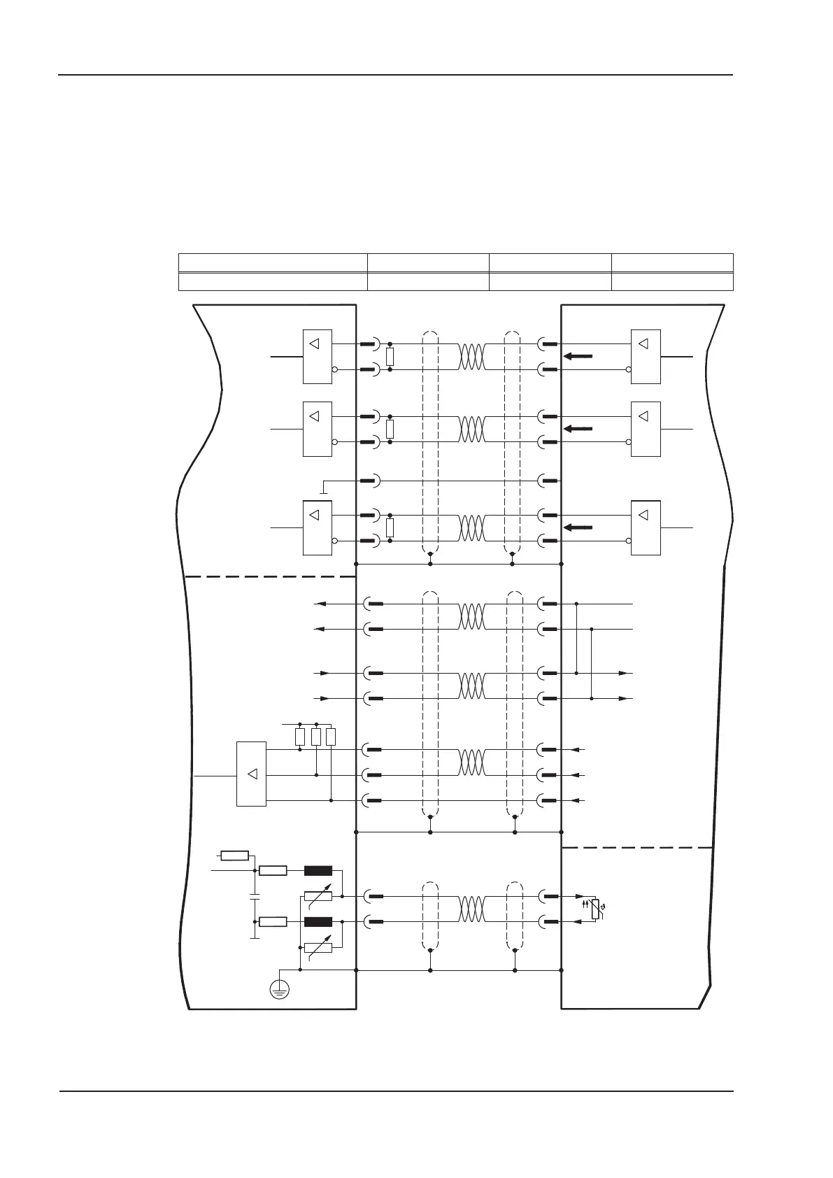
8.12.16 ROD (AquadB) 5V with Hall (X5, X1)
Wiring of a 5V incremental encoder (ROD, AquadB) with Hall sensors as a feedback unit
(primary, ð p.66). For the commutation hall sensors are used and for the resolution an
incremental encoder. The thermal control in the motor is connected to X1 and evaluated
there.
If cable lengths of more than 25 m are planned, please consult our customer service.
Frequency limit X5: 1.5 MHz, X1: 350 kHz
Type FBTYPE EXTPOS GEARMODE
AquadB 5V with Hall 18 - -
82 S300 Instructions Manual
Electrical installation 02/2017 Kollmorgen
7
14
5V +/-5
max. 250mA
2
3
6
7
12
4
2
10
0V
U
P
UP
0V
X1
150 *Ù
150 *Ù
5
4
150 *Ù
X5
RS 485
RS 485
RS 485
NI+
0V
U
P
UP
0V
B-
B+
NI-
GND
A-
A+
8
15
6
GND
1
min. 5VDC/5mA
RS 485
RS 485
RS 485
to line impedance
* matches RS485 with resistor according
sense
Motor
voltage supply
sense
Incremental Encoder
track B
zero I
track A
thermal control
Hall-W
Hall-V
Hall-U
Hall
S300

Table of Contents

Other manuals for Kollmorgen SERVOSTAR 300

Related product manuals