EasyManua.ls Logo

Kollmorgen SERVOSTAR 300

Kollmorgen SERVOSTAR 300
138 pages
To Next Page IconTo Next Page
To Next Page IconTo Next Page
To Previous Page IconTo Previous Page
To Previous Page IconTo Previous Page
Loading...
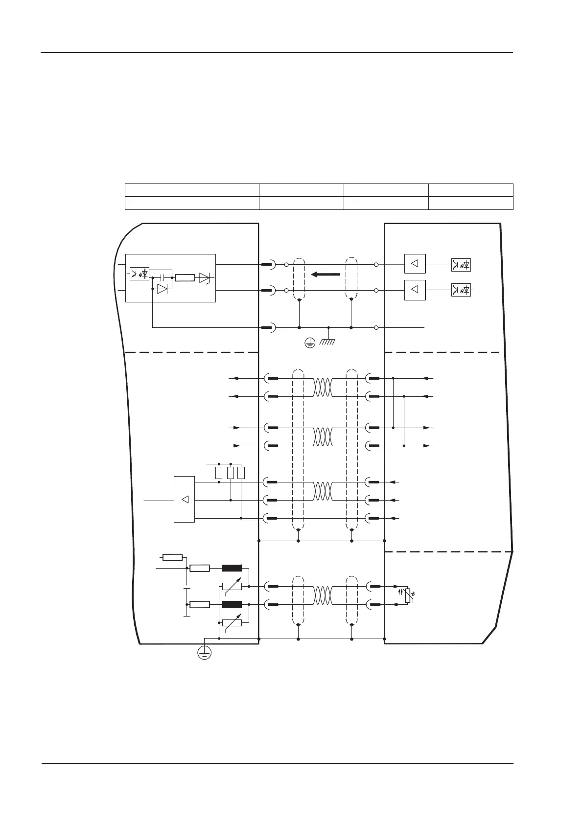
8.12.18 ROD (AquadB) 24V with Hall (X3, X1)
Wiring of a 24V incremental encoder (ROD, AquadB) and Hall sensors as a feedback unit
(primary, ð p.66). For the commutation hall sensors are used and for the resolution an
incremental encoder.
The thermal control in the motor is connected to X1 and evaluated there. If cable lengths
of more than 25m are planned, please consult our customer service.
Frequency limit X3: 100 kHz, X1: 350 kHz
Type FBTYPE EXTPOS GEARMODE
AquadB 24V with Hall 14 - -
84 S300 Instructions Manual
Electrical installation 02/2017 Kollmorgen
9
DGND
X4/4
DIGITAL-IN1
DIGITAL-IN2
X3
8
GND
B
A
5V +/-5
max. 250mA
0V
7
14
8
15
2
6
0V
U
P
UP
12
4
10
X1
min. 5VDC/5mA
0V
U
P
UP
0V
Motor
HALL
Hall-W
Hall-V
Hall-U
sense
thermal control
voltage supply
Incremental Encoder
+24V ref. to GND
track B
track A
sense
S300

Table of Contents

Other manuals for Kollmorgen SERVOSTAR 300

Related product manuals