EasyManua.ls Logo

Kollmorgen SERVOSTAR 300

Kollmorgen SERVOSTAR 300
138 pages
To Next Page IconTo Next Page
To Next Page IconTo Next Page
To Previous Page IconTo Previous Page
To Previous Page IconTo Previous Page
Loading...
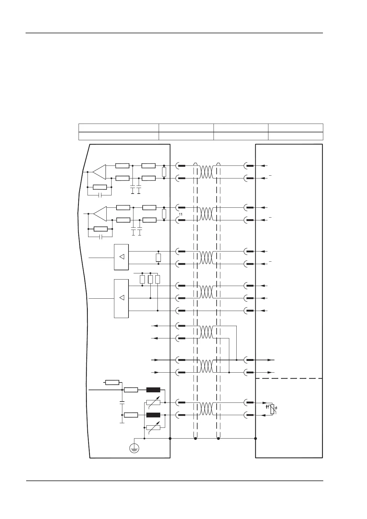
8.12.14 ROD (AquadB) 5V with Hall (X1)
Wiring of a ComCoder as a feedback unit (primary, ð p.66). For the commutation hall
sensors are used and for the resolution an incremental encoder. The thermal control in
the motor is connected to X1 and evaluated there. With our ComCoder cable all signals
are connected correctly.With separate feedback devices (Encoder and Hall are two
devices) the wiring must be done similar to chapter 8.12.11, but the amplifier's pinout is
identical to the wiring diagram shown below.
If cable lengths of more than 25 m are planned, please consult our customer service.
Frequency limit (A,B): 350 kHz
Type FBTYPE EXTPOS GEARMODE
AquadB 5V with Hall 15 - -
The pin assignment shown on the encoder side relates to the Kollmorgen motors.
80 S300 Instructions Manual
Electrical installation 02/2017 Kollmorgen
6
7
14
4
2
10
12
13
8
5
3
9
1
X1
15
9
8
7
10
UP
0V
1
2
4
3
16
6
5
Z
Z
A
A
B
B
U
P
0V
U
P
0V
15
17
max. 250mA
5V +/-5
100pF
100pF
5k
5k
5k
5k
5k
+
-
-
+
100pF
5k
5k
100pF
5k
120
120
min. 5VDC/5mA
sense
thermal control
Hall-U
Hall-V
Hall-W
Motor
voltage supply
Comcoder
S300
SubD15
round, 17 pin

Table of Contents

Other manuals for Kollmorgen SERVOSTAR 300

Related product manuals