EasyManua.ls Logo

Lenovo ThinkSystem SR635 V3 - Page 260

Lenovo ThinkSystem SR635 V3
356 pages
To Next Page IconTo Next Page
To Next Page IconTo Next Page
To Previous Page IconTo Previous Page
To Previous Page IconTo Previous Page
Loading...
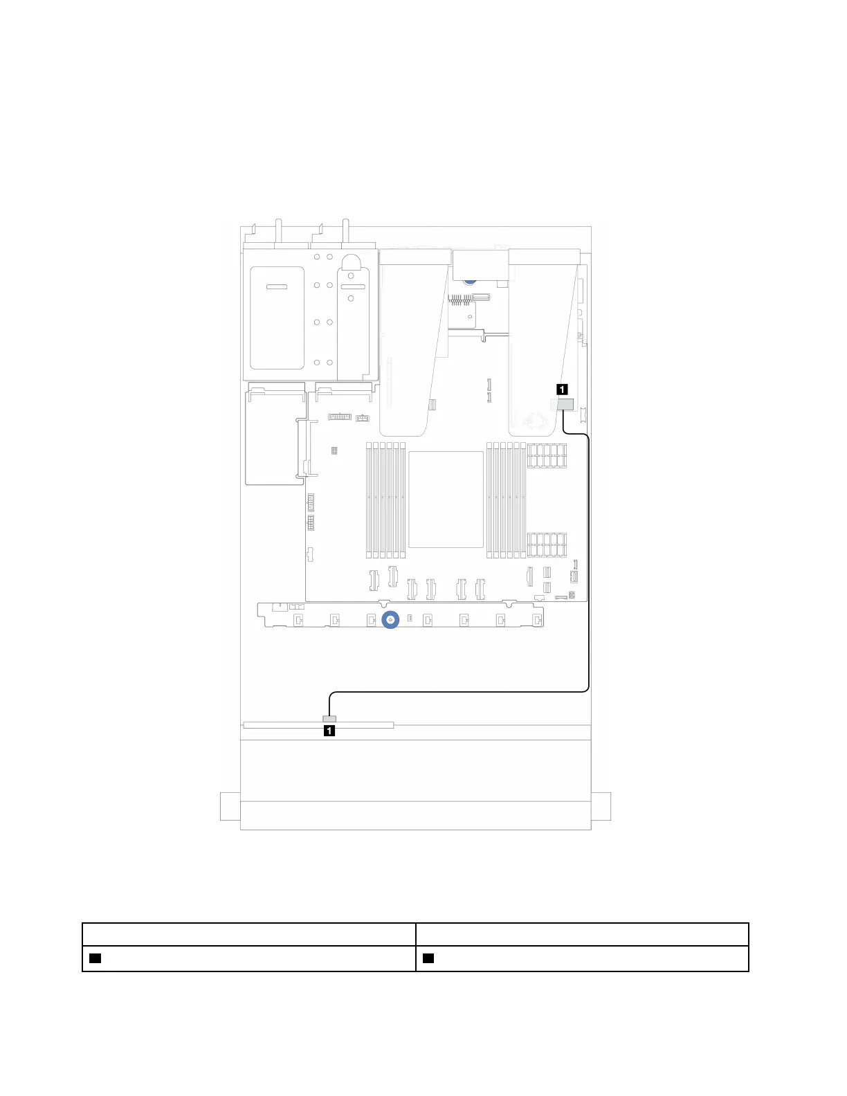
Cable routing with an SFF HBA/RAID adapter
The following figure shows the mapping relationship between backplane connectors and system board
assembly/adapter connectors when an 8i SFF HBA/RAID adapter (Gen 3 or Gen 4) is installed.
Note: Gen 3 and Gen 4 SFF RAID/HBA adapters are slightly different in their connectors, but the connection
method is similar. The following illustration takes Gen 4 SFF RAID/HBA adapters as an example.
Figure 188. Cable routing for 4 x 2.5-inch front SAS/SATA drive bays with an 8i SFF RAID adapter (Gen 3/ Gen 4)
Table 29. Mapping between backplane connectors and system board assembly/adapter connectors when an 8i SFF
HBA/RAID adapter is installed
From To
1 SAS on the front backplane 1 C0 on the SFF HBA/RAID adapter
250 ThinkSystem SR635 V3 User Guide

Table of Contents

Other manuals for Lenovo ThinkSystem SR635 V3

Related product manuals