EasyManua.ls Logo

Lenovo ThinkSystem SR635 V3 - Page 270

Lenovo ThinkSystem SR635 V3
356 pages
To Next Page IconTo Next Page
To Next Page IconTo Next Page
To Previous Page IconTo Previous Page
To Previous Page IconTo Previous Page
Loading...
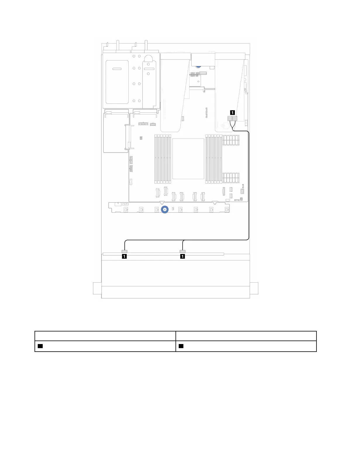
Figure 195. Cable routing for 8 x 2.5-inch front SAS/SATA drive bays with an 8i or 16i SFF RAID adapter (Gen 3)
Table 36. Mapping between one 8 x 2.5-inch front SAS/SATA backplane and an SFF HBA/RAID adapter
From To
1 SAS 0 and SAS 1 on the front backplane 1 C0 and C1 on the SFF HBA/RAID adapter
Cable routing with a CFF HBA/RAID adapter
For power and input connections of CFF RAID/HBA adapters, refer to
“CFF RAID/HBA adapter” on page
222
.
260
ThinkSystem SR635 V3 User Guide

Table of Contents

Other manuals for Lenovo ThinkSystem SR635 V3

Related product manuals